ЗАПОЧНАЛО СТРОИТЕЛСТВО!!! НОВА СГРАДА!!! ЮЖЕН!!! СОБСТВЕН ДВОР!!!
Предлагаме за продажба двустаен апартамент в новострояща се жилищна сграда, разположена на удобно и комуникативно място в кв. Владиславово.
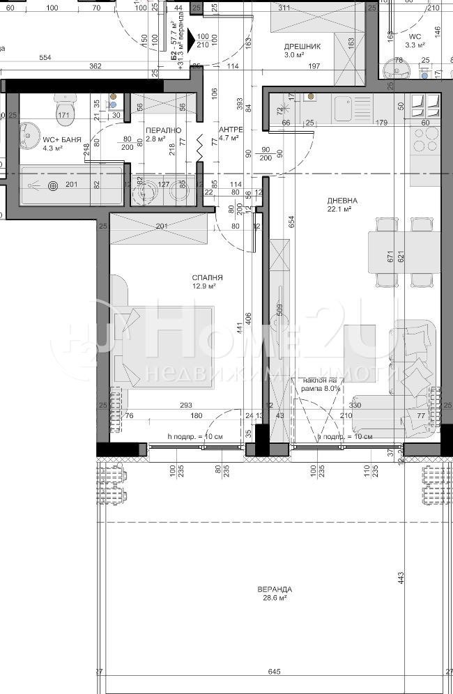
Жилището е с югоизточно изложение и се отличава с функционално разпределение и правилни форми на помещенията:
Дневна с кухненски бокс, спалня, баня с тоалетна, складово помещение в апартамента, дрешник и собственна веранда!
Сградата се изпълнява с висококачествени материали, модерна визия и е в непосредствена близост до училища, детски градини, магазини Jumbo и Kaufland, както и спирки на градски транспорт.
Имотът е подходящ както за собствено ползване, така и за инвестиция.
За повече информация и оглед, като цитирате този код - 139181!







