Макаса консулт предлага на Вашето внимание последен двустаен имот в новострояща се сграда находяща се на ул. Тимок . Сградата е на етап АКТ 14 с очаквано завършване до 10.2026г.
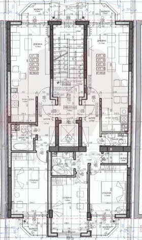
Жилището се намира на 5-ти етаж със РЗП от 75 кв.м, и ЗП от 63 кв.м, отделно към апартамента има и складово помещение/мазе в сутерена на сградата, което е включено в цената.
Разпределението на имота е както следва: входна антре, дневна с трапезария с площ от 18.28 кв.м + кухненски бокс с площ 4.36 кв.м или с обща площ от 22.64 кв.м. от дневната се излиза на северна тереса с площ от 4.04 кв.м, спалня с площ от 14.58 кв.м с излаз на южен балкон с площ от 2.70 кв.м, санитарен възел с площ от 3.79 кв.м.
Едно от най-големите предимства на сградата е малкия брой апартаменти само 12, което предразполага за по-спокоен начин на живот и по-лесна комуникация с бъдещите Ви съседи.
Локацията на сградата се отличава с добре развита транспортна, социална, търговска и културна инфраструктура ключов фактор при избора на жилище. Разположена в един от перспективните столични райони в широкия градски център, сградата е обградена от улица Козлодуй и булевардите Сливница и Княгиня Мария Луиза . Близостта до мрежата на метрото, както и наличието на ключови автобусни, тролейбусни и трамвайни линии, преминаващи покрай квартала, превръщат района в отлично място за живеене с бързи и удобни връзки към централните и периферните части на града.
Сградата е разположена в добре благоустроена, озеленена и спокойна част на ул. Тимок . Архитектурното решение е ориентирано към осигуряването на високо качество на жилищната среда, съчетаваща оптимални климатични условия с хармонично възприятие на градската среда. Тази концепция допринася за създаването на комфортна и уютна атмосфера за обитателите. Извършеният анализ на ослънчаването, заедно с използването на съвременни строителни материали, гарантира постигането на високо ниво на енергийна ефективност.
БЕЛЕЖКА: В сградата се продават 5 тристаен имота на различни етажи.
Макаса консулт предлага на своите клиенти, безплатно кредитно съдействие от всички търговски банки при най-добри условия, пълно юридическо съдействие за покупка или продажба на имот, СМР дейности, управление на Вашия инвестиционен имот и редица други услуги. Очакваме Ви!
За повече информация и организиране на огледи сме на среща.







