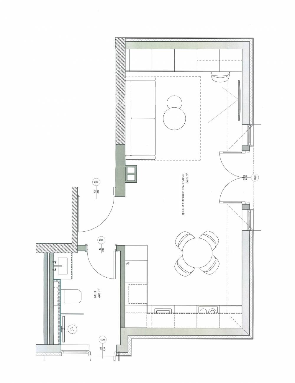
Двустайно жилище състоящо се от: антре, дневна с кухненски бокс, спралня, баня с тоалетна и тераса.
Има възможност за закупуване на паркомясто.
Намира се в кв. Суха река, в тих район с развита инфраструктура с удобни транспортни връзки до централни части на града. В близост до магазини, училища, детски градини и спирки на градския транспорт.
Малка бутикова сграда пред Акт 14.
Конструктивната система на сградата е масивна, монолитна, скелетно гредова, в определени участъци скелетно-безгредова , с носещи стомано бетонни. колони и диафрагми. Фундира се на обща фундаментна плоча. Външните и вътрешни ограждащи зидове са съответно 25 и 12,5 сантиметрови блокове.
Фасадните плътни части са със завършек от цветна мазилка, покриваща топлоизолационната система, положена върху зидарията от блокове.
Прозоречните отвори по фасадите са решени с петкамерна PVC догрма със стъклопакет с ниска и висока емисия на стъклото (К-стъкло и 4 сезона). Парапетните системи по фасадата са със стоманобетонова конструкция в комбинация с алуминиеви профили.
Без комисион от купувача!
Район с добре изградена инфраструктура, апартаментите в сградата са подходящи както за живеене, така и за инвестиция.
Обади се сега и цитирай този код 658373







