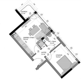
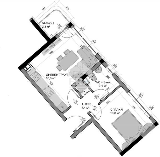
ЕКСКЛУЗИВНО! С АКТ 14! ЕРА Варна Тренд предлага за продажба двустаен апартамент в новострояща се сграда Фюжън 2, в долната част на жк Владиславово. Имотът е със застроена площ 45,37 кв.м (52,07 кв.м с общите части), разположен на седми етаж от общо 8 етажа. Състои се от дневна с кухненски бокс (16 кв.м) и излаз на балкон (2,3 кв.м), спалня (10,8 кв.м), коридор (3,4 кв.м), баня с тоалетна (3,4 кв.м) и килер (0,7 кв.м). Изложението е североизток. Статутът е на апартамент.
Жилището се продава необзаведено. Ще бъде завършено до степен БДС. Отоплението ще бъде с електричество.
Двустайният апартамент се намира в долната част на жк Владиславово, в жилищен комплекс Фюжън 2. Сградата е 8-етажна, с асансьор, на етап на строителство издаден Акт 14, изпълнена с качествени материали, от доказал се на пазара инвеститор с множество построени сгради във Варна. Етапи на строителство: Откриване на строителна плащадка - 27.11.2024 г. Акт образец 14 - 31.10.2025 г. Акт образец 15 - 31.12.2026 г. Разрешение за ползаване (Акт 16) до 3 /три/ месеца от завършване на строежа и подписване на акт обр.15.
СТЕПЕН ЗА ЗАВЪРШЕНОСТ
Общи части на сградата: подови настилки и стъпала от гранитогрес или гранит; стени - декоративна мазилка; асансьор - ORONA;
Апартаменти: вътрешни стени - тухла с гипсова мазилка; тавани гипсокартон; под на стаи - циментова замазка; баня-тоалет: под циментова замазка, стени вароциментова мазилка; ел. инсталация завършена напълно до ключове, контакти, оптичен кабел до апартамент; В и К инсталации завършени до тапа; Изграждане на тръбни връзки за монтаж на климатици, на определени по архитектура места. Външна врата блиндирана с облечена декоративна каса; Прозорци: Висококачествена PVC дограма - 5 или 6 камерна с двойни стъклопакети ширина 32 мм, 6 мм четири сезона/4 мм бяло флоатно стъкло, подпрозоречни первази.
Оферта 0222030



