Предлагаме чисто нов, напълно обзаведен двустаен апартамент в нова сграда в кв.Връбница-1 .Жилището се намира в нова тухлена сграда с акт 16 от 2025г, на тиха и спокойна локация, на пешеходно разстояние от метростанция, спирки на разнообразен градски транспорт, множество супер и хипермаркети, магазини, училище, детска градина и други.
Апартаментът се продава напълно обзаведен с висок клас мебели по дизайн, с цялостно обзавеждане и електроуреди.
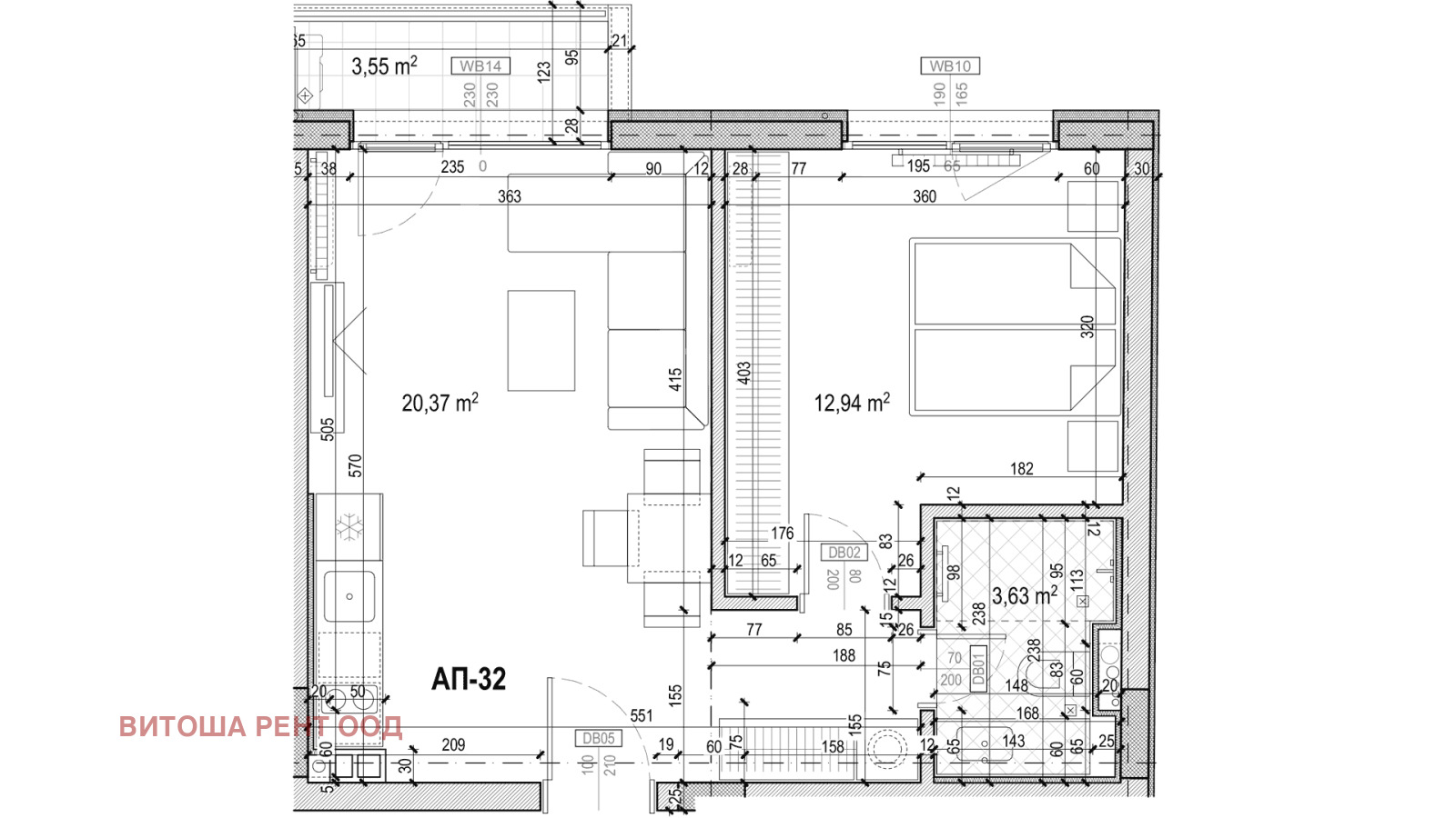
Разпределението е функционално: антре, дневна с кухненски бокс, спалня, тераса, баня с тоалетна.
Чудесна възможност за инвестиция и отдаване под наем, с гарантиран месечен доход.
Отоплението и охлаждането се осъществява чрез климатици. Апартаментът ще има и централно отопление-ТЕЦ.
Етаж 4 от 8
Изложение- изток с гледка към вътрешен затворен двор.
Площ 59 кв.м.
Чиста площ -50кв.м.







