Имоти Премиер Ви представя двустаен апартамент в новострояща се сграда, разположена в един от най-предпочитаните и бързоразвиващи се райони на Варна в близост до КАТ, на границата на кв. Младост. Районът предлага отлична инфраструктура, удобен достъп до главни пътни артерии, магазини, детски градини и училища.
Апартаментът е разположен на 8-ми етаж от 11, с обща площ от 76 м² и източно изложение, което осигурява светлина и уют през целия ден.
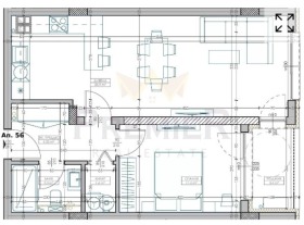
Разпределение:
✔️ Входно преддверие 5,33 м²
✔️ Просторна дневна с кухненски бокс 29 м²
✔️ Спалня 11,6 м²
✔️ Баня с тоалетна 3,3 м²
✔️ Килер 1,6 м²
✔️ Лоджия 3,4 м²
Допълнителна информация:
✅ Възможност за гъвкави схеми на плащане
✅ Опция за закупуване на паркомясто
Ние от Имоти Премиер ще Ви съдействаме през целия процес от избора на имота до финализиране на сделката! При желание съдействаме и за банково кредитиране при най-добри условия.
📞 За повече информация и огледи: Код на имот 377288







