КОД: 3290
Capital Property Group продава 2-стаен имот в новострояща се жилищна сграда в кв. Младост, гр. Варна. Намира се на девети /не последен/ реален етаж с обща площ от 69 м2.
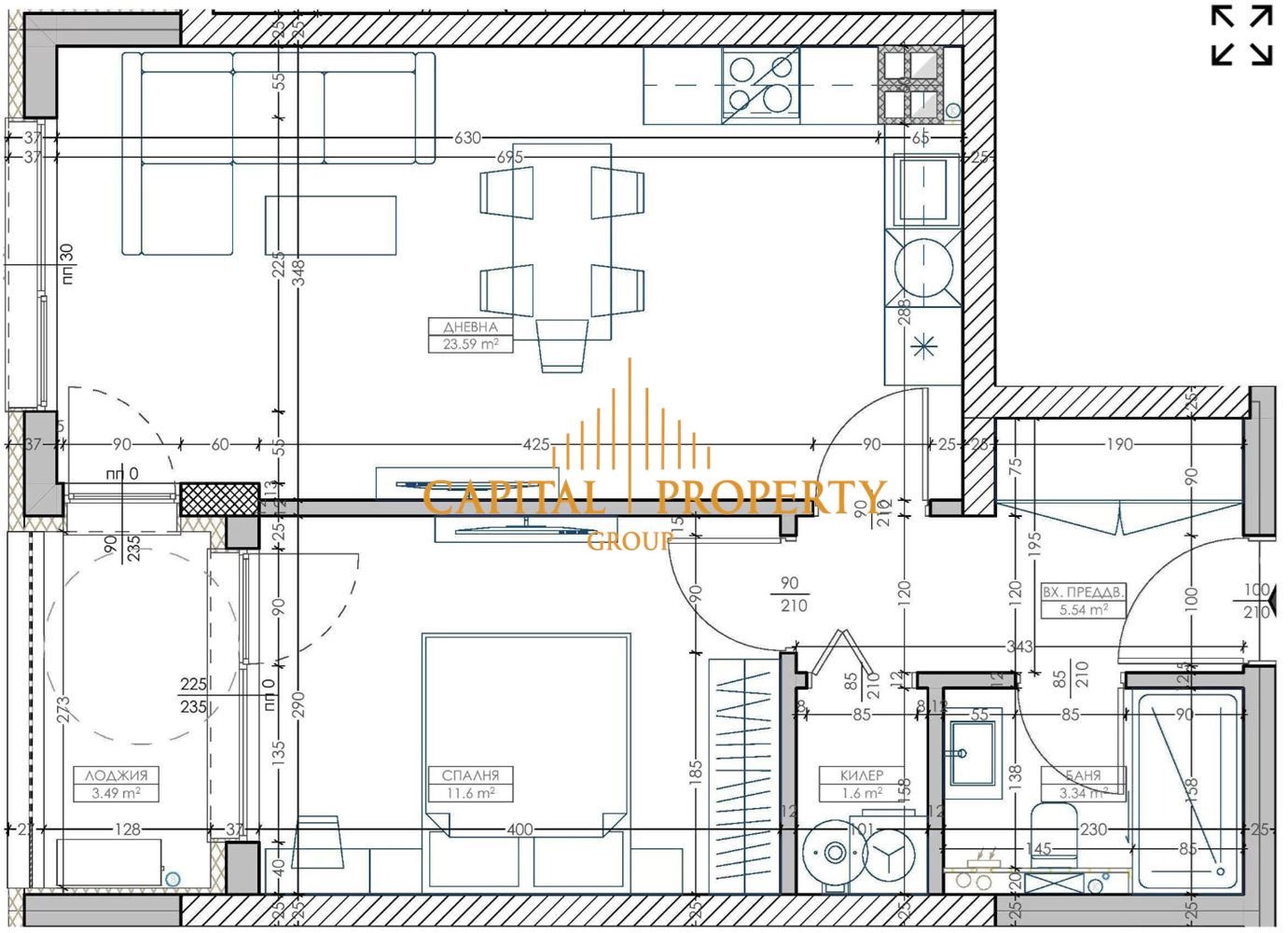
Разпределението е следното: всекидневна, спалня, баня с тоалет, килер, тераса към двете стаи и коридор. В снимковия материал сме приложили схема за Ваше улеснение. Изложение: ЗАПАД.
Сградата е в близост до автобусна спирка - 150 м., ДГ Морска Звездица - 400м, ПГ д-р Иван Богоров - 600м., магазини, паркове и др. Проектът включва 11-етажна сграда с 89 жилища, магазин и подземен паркинг. Ще бъде снабдена с два асансьора и два входа с общ коридор. Етап към дата 17.11.2025г - кота 24,20м. Предвидено е въвеждане в експлоатация на сградата през 2027г. Жилищата ще се издават по БДС!
Има възможност за закупуване на открито ПМ на стойност 12 000 евро.
Капитал Пропърти Груп разполага с юридически отдел, който извършва всички необходими юридически и технически проверки на имота, ще организира всички етапи на сделката до нейното финализиране с нотариално прехвърляне на имота.
Капитал Пропърти Груп може да Ви съдейства за отпускане на банков кредит при възможно най-добри условия за клиента, като избора на банка се определя спрямо нуждите и възможностите на клиента, при това напълно безплатно.
За повече информация и огледи се свържете с нас на посочения телефон или ни пишете на viber/whatsapp.







