Отличен двустаен апартамент ново строителство.
Жилището е разположено в един от най-комуникативните части на Банкя ул. Цар Освободител , непосредствено до спирка на градски транспорт осигуряващ директна връзка с метрото.
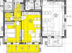
Апртамeнтът е с изцяло южно изложение и има следното разпределение:
Входно антре, просторна дневна част състояща се от дневна с кухненски бокс и трапезария.
Самостоятелна спалня.
От дневната и от спалнята се излиза на прекрасна южна тераса.
Баня и тоалетна.
Към апартамента има мазе, което е включено в цената.
Aсансьор.
Възможност за закупуване на надземно паркомясто.







