Директно от инвеститор!
📍 Esteta Properties представя новострояща се модерна жилищна сграда в кв. Люлин 6
✨ Основни характеристики:
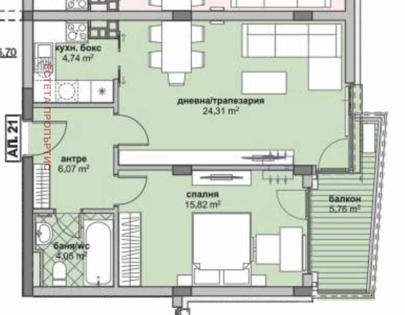
🏠 2-стаен апартамент
🌅 Изложение:юго-изток
📐 Застроена площ: 70,48 кв.м
📦 В цената е включено мазе
⚡ Отопление ТЕЦ
🅿️ Възможност за гараж или паркомясто
🏫 В близост: Метростанция Западен парк и Westmall Люлин,Pulse фитнес,Кауфланд,градски транспорт и основни пътни артерии.
💡 Отличен избор за живеене или инвестиция комуникативна локация с бърз достъп до всички ключови точки на града.
🏢 В сградата се предлагат и други 2- и 3-стайни апартаменти с различни квадратури и изложения,богат избор според вашите нужди!
💰 Гъвкави схеми на плащане
📆 Срок на завършване: началото на 2027г
📞 За повече информация и огледи:
Мартин Петров
📱 +359 88 531 4000
🌐 https://estetaproperties.bg/







