📢 0% КОМИСИОН! - ДИРЕКТНИ ПРОДАЖБИ ОТ ИНВЕСТИТОР!📢 ОФЕРТА: 17335
💰 РАЗСРОЧЕНИ СХЕМИ НА ПЛАЩАНЕ! 💰 ВЪЗМОЖНОСТ ЗА БАНКОВ КРЕДИТ!
➣ Агенция за недвижими имоти 'ГОЛД ИМОТИ' с удоволствие представя най-новия проект в нашето портфолио - две жилищни сгради, отличаващи се с модерен архитектурен стил, висок стандарт на изпълнение и внимание към детайла.
➡️ Разпределение:
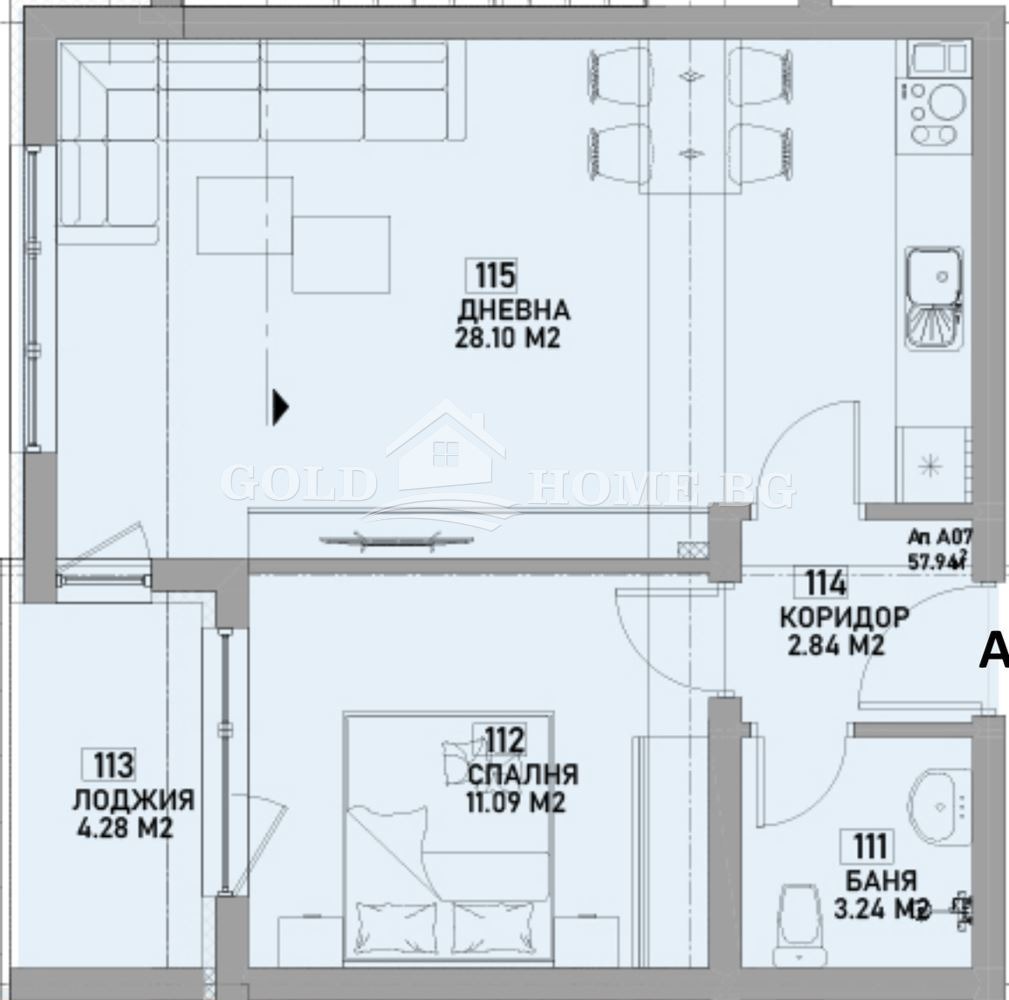
Входно антре, просторна дневна с трапезария и кухненски бокс (28 кв.м.), спалня, баня с тоалетна, тераса с излаз от двете помещения.
☀️ Изложение: запад;
✅ Предлагаме същия модул апартамент на различни етажи и цени.
- Проектът залага на просторни разпределения, зелени площи и спокоен жилищен комфорт - идеалната комбинация за ценителите на качествената градска среда.
- Фасадата впечатлява с изчистена визия и елегантна цветова комбинация, допълваща съвременния характер на комплекса.
✨ Характеристики и предимства:
- Партерни апартаменти с индивидуални дворни пространства.
- Контролиран достъп чрез бариера.
- Тиха и зелена жилищна среда.
✔️ Степен на завършеност:
- Ел. инсталацията с монтирано ел. табло с ДТЗ, с поставени ключове и контакти;
- Водопроводните и канализационните тръби, изпълнени до тапа с монтирани водомери;
- Положена инсталация за кабелна телевизия и интернет;
- Домофонна система с видео наблюдение.
- Монтирана входна блиндирана врата;
- Фасадната дограма - 5-камерна двуцветна ПВЦ със стъклопакет с мултифункционално стъкло
📅 Планирани срокове:
- Старт на проекта: април 2026 г.;
- Срок на изпълнение: 3 години;
🅿️ Паркиране:
- Паркирането в комплексът е осигурено на 100%.
- Има възможност за покупка както на партерни гаражи, така и на външни паркоместа.
➡️ Инвеститор:
Доказан и стабилен инвеститор с богат опит и успешно реализирани проекти, гарантиращ качествено изпълнение и високи стандарти.
📌 Локация:
- Идеален микс от комфорт, чист въздух и спокойствие усещане, което рядко се среща в градските квартали.
- Достъпът до сградата се осъществява от няколко възможни маршрута.
- В непосредствена близост се намира до ресторант Note Di Vino, Billa Южен, няколко основни пътни артерии , както и достатъчно спирки на градския транспорт.
➡️ ГОЛД ИМОТИ Ви предлага да се възползвате от професионално кредитно посредничество чрез Credit Center при ипотека, потребителски кредит и рефинансиране!
-УСЛУГАТА Е ИЗЦЯЛО БЕЗПЛАТНА!
-ИЗГОТВЯНЕ НА НЯКОЛКО ОФЕРТИ ОТ ВОДЕЩИ БАНКИ!
-НАЙ-ИЗГОДНИ УСЛОВИЯ СПРЯМО ВАШИЯТ ПРОФИЛ!
-НЕ Е НЕОБХОДИМО ДА СЕ РАЗКАРВАТЕ ВЪВ ВСЕКИ КЛОН НА РАЗЛИЧНИ БАНКИ!
➡️ Още атрактивни и актуални оферти може да разгледате на нашият сайт: www.goldhome.bg
📞 За повече информация и при интерес за оглед, моля свържете се с нас.







