ЕКСКЛУЗИВ от Winners Reality: 2-стаен в нова сграда с АКТ 14
Обща цена: 162 000 Евро
Съдействие за ипотечен кредит при преференциални условия.
Изложение: Запад / Североизток
Тип: Двустаен
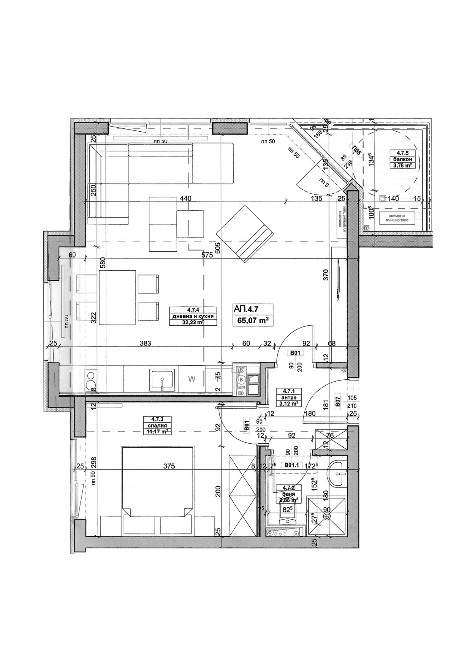
Площ: обща 76,44 м² | чиста 65,07 м² | общи части 8,43 м² | склад 2,94 м²
Акт 16: края на 2026 г.
Функционално разпределен двустаен апартамент, отличаващ се с просторна дневна зона с място за кухненски бокс, и излаз към тераса, самостоятелна спалня, баня с тоалетна, входно антре и складово помещение на етажа. Имотът е с отлично разпределение и правилни форми на помещенията, подходящ както за лично ползване, така и за инвестиция.
Всекидневната предлага възможност за обособяване на кухненска част, трапезария и зона за отдих. Спалнята е с отлични размери и място за голям гардероб. Балконът осигурява допълнително пространство и комфорт.
Апартаментът е част от затворен жилищен комплекс GardenResidence модерен проект с над 6 000 м² зелени площи, предвиждащ изграждането на 10 самостоятелни жилищни сгради с общо 600 апартамента. Комплексът разполага с контролиран достъп, търговски обекти, подземен и наземен паркинг, както и удобни асансьори във всяка сграда.
Локация: само на 150 м от бул. Ломско шосе и в близост до метростанции Ломско шосе и Бели Дунав. В района има детски градини, училища и множество магазини, което прави мястото подходящо за семейно и дългосрочно обитаване. Отлична инфраструктура и бърз достъп до центъра на София.
Строителство и материали
Външни и междуапартаментни стени: тухла WIENERBERGER Porotherm 25 N+F Light (25 см); вътрешни прегради 12 см.
Топлоизолация: EPS 10 см по всички ограждащи надземни стени.
Мазилки, лепила и замазки: BAUMIT, MAPEI, RÖFIX.
Фасада: висококачествени полимерни и силикатни мазилки MAPEI + алуминиеви композитни панели.
Парапети: стъклени; дограма: петкамерен PVC профил, двойни стъклопакети с КА стъкло.
Не отлагайте обадете се сега за пълна информация и оглед: +359 889 57 67 49 Радостслава Срефанова







