Оферта 69381 Двустаен апартамент в Кючук Париж
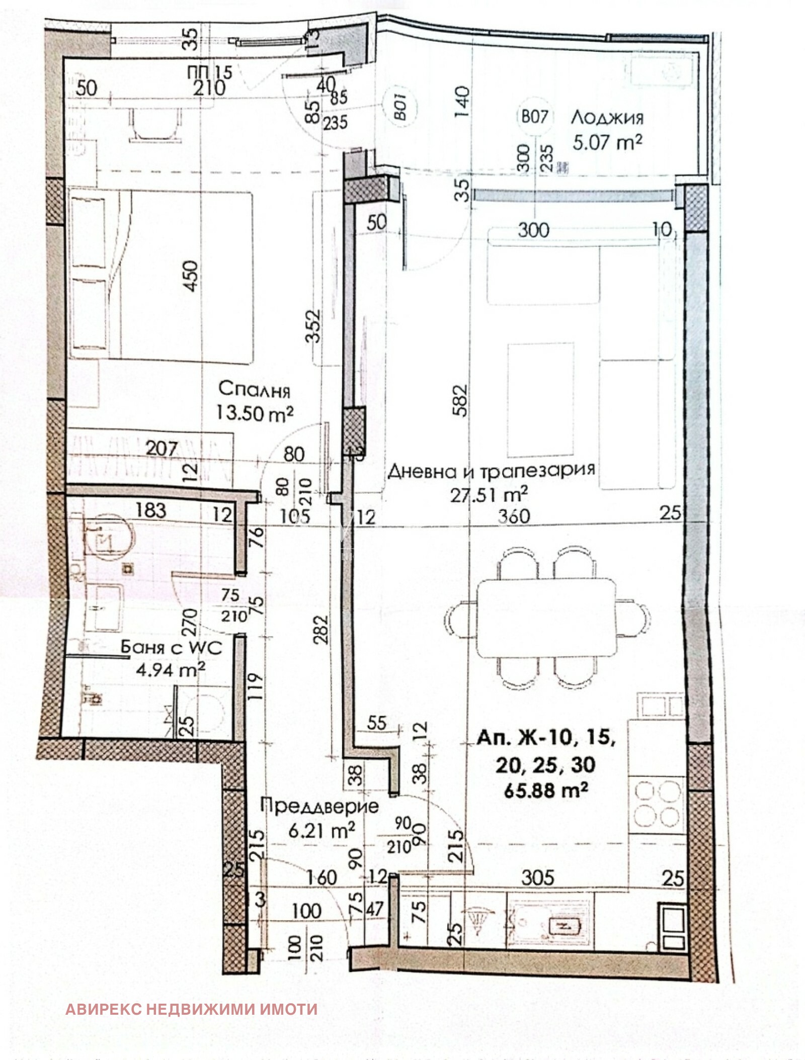
Предлагаме за продажба просторен двустаен апартамент в един от най-предпочитаните райони на Пловдив Кючук Париж. Имотът е разположен на 6-и етаж в модерна новострояща се сграда с асансьор, отличаваща се със съвременна архитектура и висок стандарт на изпълнение.
Апартаментът е с обща площ от 80 кв.м и предлага функционално разпределение, комфорт и светлина. Към момента сградата е на АКТ 14, като получаването на АКТ 16 е планирано за средата на 2026 г.
Цена: 114 900
Този имот е отличен избор както за бъдещ дом, така и за инвестиция в развиващ се район с много удобства и бърз достъп до ключови точки в града.







