Екип SART Ви предлага за продажба двустаен апартамент в новострояща се сграда в кв.Възраждане 1.
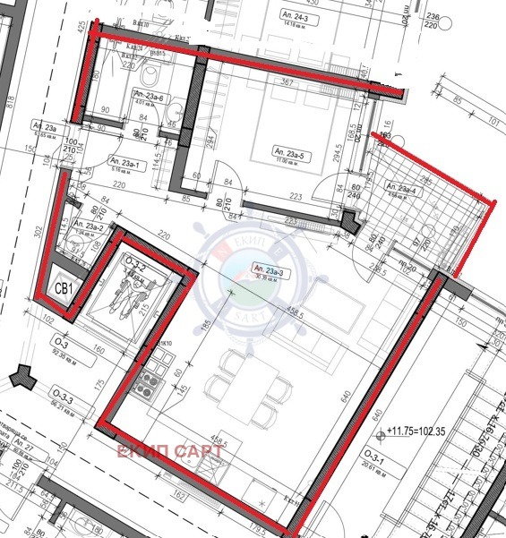
Жилището се намира на 4/7 етаж и се състои от дневна с кухненски бокс, спалня, баня с тоалетна, килер, коридор и тераса. Изложението на имота е югоизток, среден, вътрешен и изцяло покрит.
Схема на плащане:
30% от цената на апартамента при подписване на Предварителен договор;
35% от цената на апартамента при получаване на Акт 14.
25% от цената на апартамента при получаване на Акт 15;
10% от цената на апартамента при получаване на Акт 16
Възможност за закупуване на подземно или открито паркомясто, съответно на 16 000 евро или 12 000 евро.
Модерна сграда в напреднал строеж, планирана за АКТ 14 пролетта на 2026 г , а АКТ 15 - пролетта на 2027 г. Сградата ще бъде изградена със съвременен дизайн и качествени материали, съвременни технологии и енергийна ефективност. На партерно ниво са проектирани търговски помещения. Проектът разполага с едностайни, двустайни и тристайни апартаменти, които ще се издават по БДС. Доказан инвеститор предлагащ гъвкави схеми на плащане и възможност за банков кредит.
Локация: В района се намират ОУ 'Никола Йонков Вапцаров', ДГ 33 'Делфинче', Парк 'Възраждане', Плувен басейн 'Делфини'хипермаркети 'Кауфланд' и 'Лидъл', както и други магазини,близо до спирки на градски транспорт, лесен достъп до главни булеварди, което прави ежедневието по-лесно и удобно. Районът е изпълнен със зелени площи за разходки, предоставяйки комфорт в съвременния живот с достъп до всичко необходимо.







