Възможност за покупка на ГОЛЯМО ПОДЗЕМНО ПАРКОМЯСТО само за 14 500 ЕВРО !!!
Представяме ви двустаен апартамент в новострояща се сграда с АКТ 14 на комуникативно място в кв. Владиславово с лесен достъп до градски транспорт, магазини, училища и детски градини.
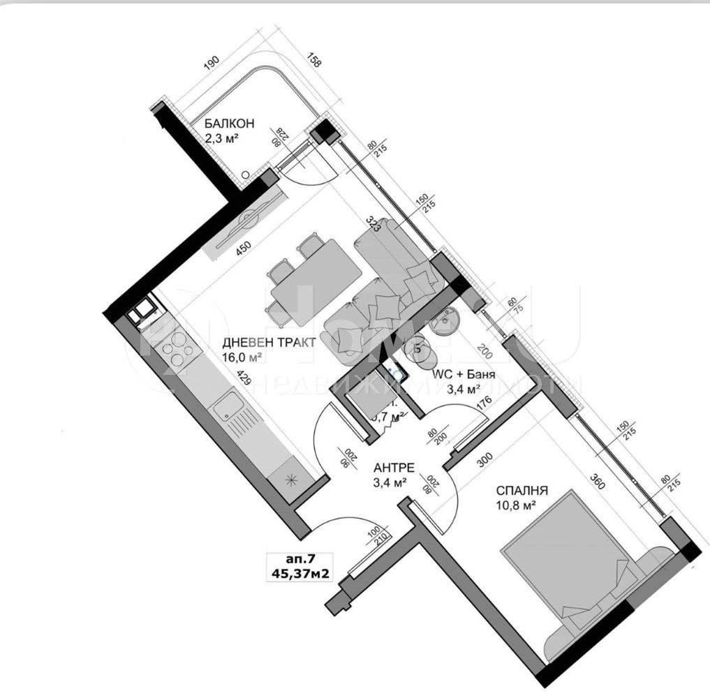
Апартамента състои от дневна с кухненски бокс и място за хранене, спалня, антре с място за гардероб, отделен дрешник, баня с тоалетна, и балкон!
Сградата е модерна, с качествено строителство, асансьор и добре поддържани общи части. Изгражда се с висококачествени материали, осигуряващи енергийна ефективност и дълготрайност. Фасадата е стилна и съвременна, а вътрешните пространства са проектирани с мисъл за удобството на бъдещите собственици.
Идеален е както за лично ползване, така и за инвестиция. За повече информация и огледи свържете се с нас, като цитирате този код - 139950
Виж всички обяви в home2uvarna.bazar.bg или тук



