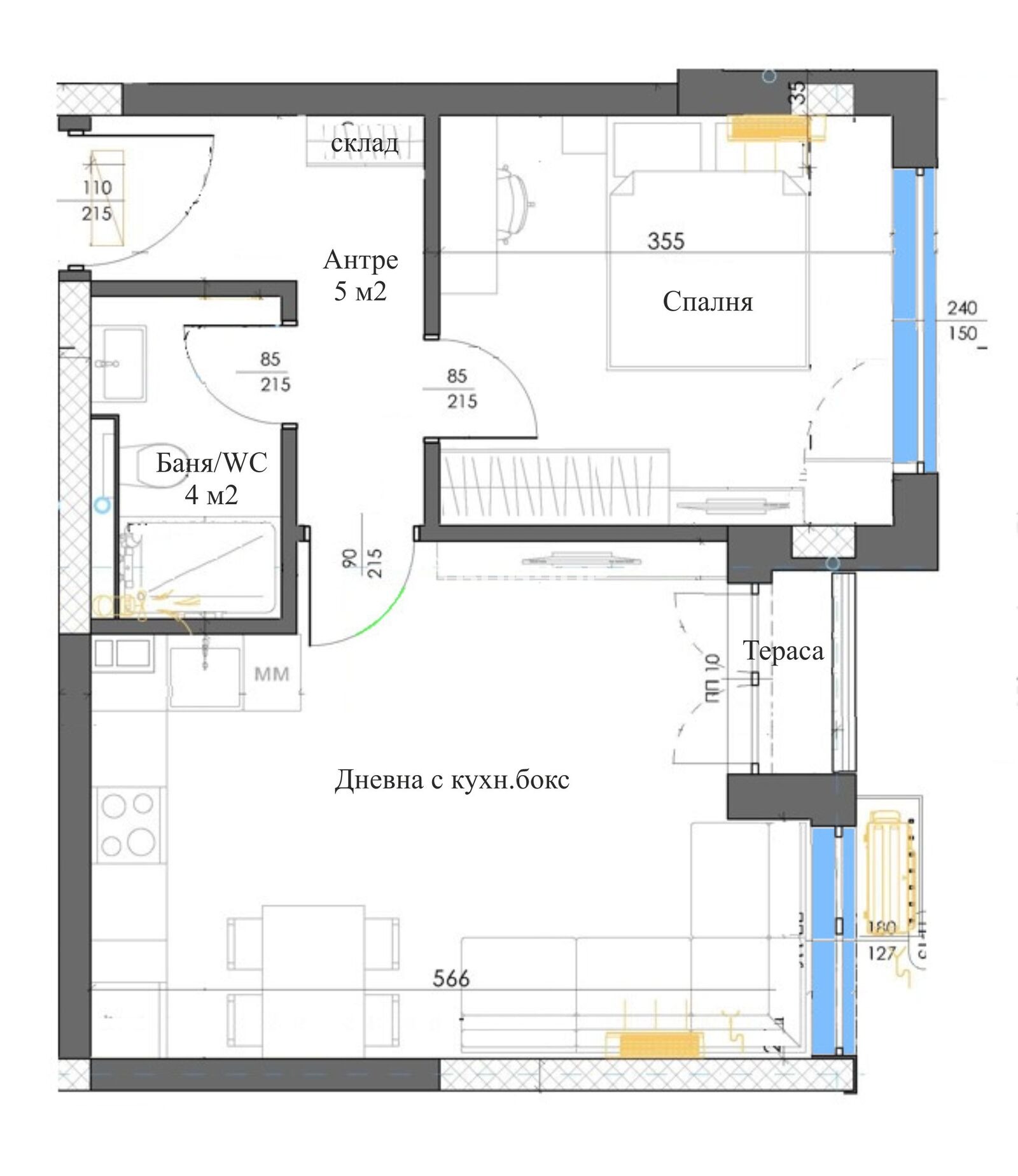
оферта 68125 - Нова малка жилищна сграда разположена в близост до ''Военна болница'' на пешеходно разстояние до търговски център ''Гранд'' и хотел ''Тримонциум, с изключително лесен достъп до идеален Център. Сградата е с РЗП под 1000кв.м. тип фамилна къща, което е допълнителен комфорт и удобство за живущите. Районът един от най- предпочитаните за покупка на основни жилища, така като за покупка на имоти с инвестиционна цел. Предлагаме ви двустаен апартамент състоящ се от дневна с кухненски бокс и трапезария, самостоятелна спалня, баня с тоалетна, входно антре, килер и една тераса. В строителството ще се използват материали от висок клас и ще бъде съобразено с всички съвременни технологии. Жилищната сграда съчетава всички качества на съвременната архитектура и новите технологии в строителството. Разполага с функционално разпределени жилища и подземни и надземни паркоместа и гаражи предвидени за всеки имот !!! Възможност за разсрочено плащане в рамките на строителството или Закупуване чрез Банков кредит !







