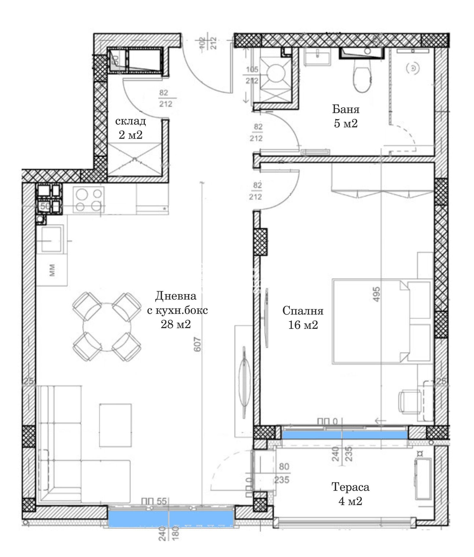
Оферта 68073 - СТРАХОТНА ЛОКАЦИЯ !!! НОВА ЛУКСОЗНА СГРАДА !!! Предлагаме на вашето внимание едно истинско бижу в централна градска част, а именно модерна сграда със собствен стил с изчистена визия, проектирана така, че да създаде максимален комфорт и уют за живеене. Двустаен апартамент, състои се от дневна с трапезария и кухненски бокс 28кв.м., голяма спалня 16кв.м., баня с тоалетна 6кв.м., входно антре, перално помещение и една тераса. Сградата привлича вниманието със своята локация, разположена в един от най- предпочитаните райони, в близост до стадион Христо Ботев, Парк Лаута, ВСИ и множество големи Хипермаркети, бърз и лесен достъп към целия град. Проектът представлява просторни и панорамни жилища с избор на размер и етаж. Паркирането е решено с подземни гаражи и голям избор на външни и подземни паркоместа. Сградата привлича вниманието със своята локация, разположена в един от най желаните квартали с ниско етажно строителство. Сградата е изградена с материали от най-висок клас на пазара в момента. Гъвкави схеми на разсрочено плащане в рамките на строителството, както и съдействие за банково кредитиране с изключително изгодни условия за клиенти на агенция Кондор. Строителната компания има опция за довършване на апартаментите до ключ.







