ВИЕ ИЗБИРАТЕ!!! С АКТ 16!!!
ЕКСКЛУЗИВНО!
Местоположение: кв. Христо Смирненски, комплекс АЛВЕРА
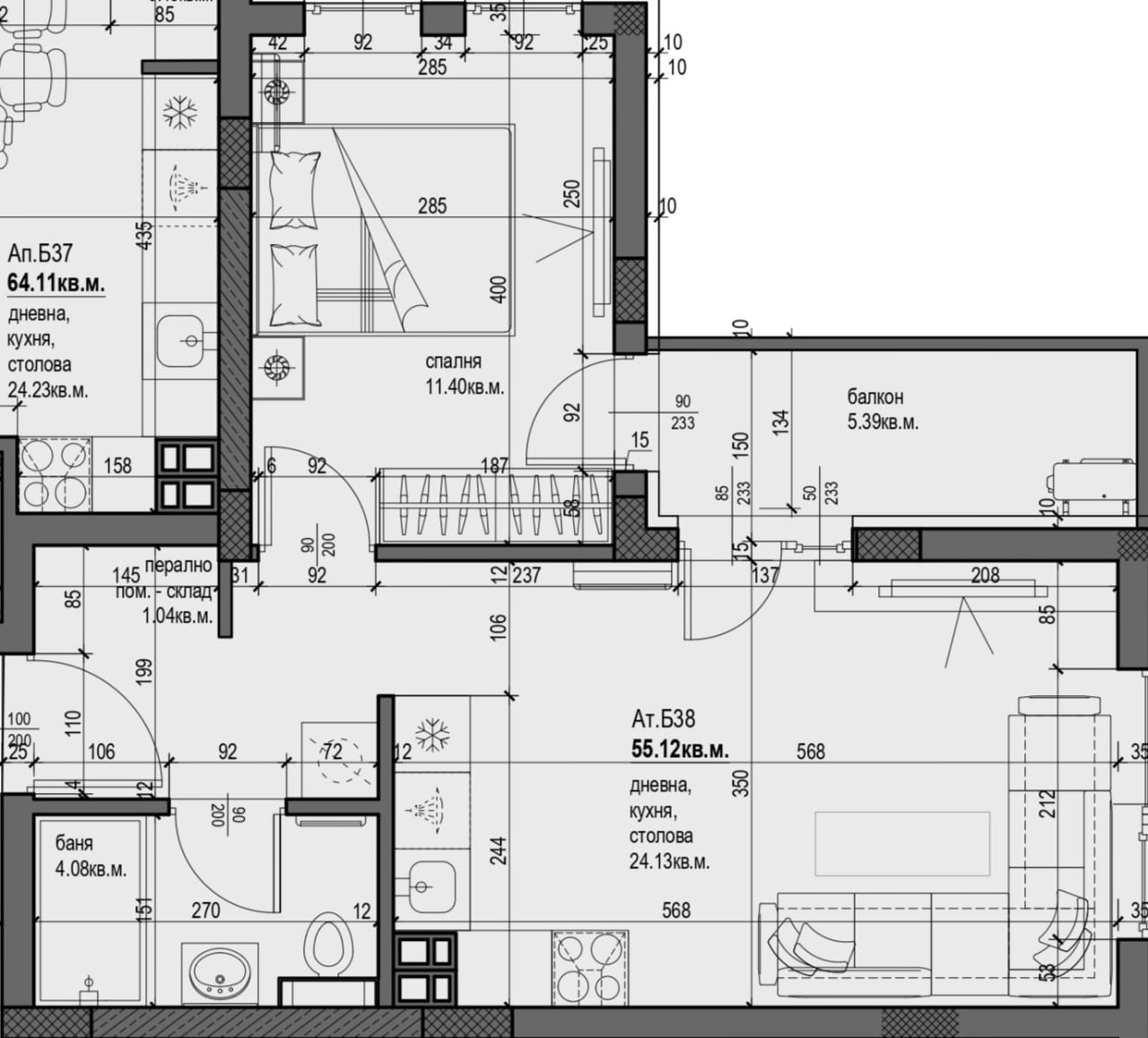
Апартамент: 64.35 кв.м, ет.5
Разпределение: спалня, дневна с трапезария и бокс - цяло помещение, баня с тоалетна, склад и тераса.
Основни характеристики: жилището се издава на замазка, шпакловка и тапа, с интериорни врати и блиндирана входна врата.
Предимства: сградите са изградени по съвременен и функционален дизайн, безупречно качество, комфорт, сигурност и зеленина, разполагат с висококачествена алуминиева дограма, подова шумоизолация, система за филтриране на водата, соларни панели и подготовка за Умен дом .
Комплексът е в непосредствена близост до супермаркети, МОЛ Пловдив, Гребна база, паркове, спортни зали и игрища на открито.
В комплекса се предлагат и други апартаменти с различна площ и разпределение.
Има възможност, за закупуване на паркомясто!!!
Телефон за контакт: 0889080505 Златарева; 0888 590 997 Димитрова







