Компас пропърти Ви предлага двустаен апартамент за продажба в с. Бистрица!
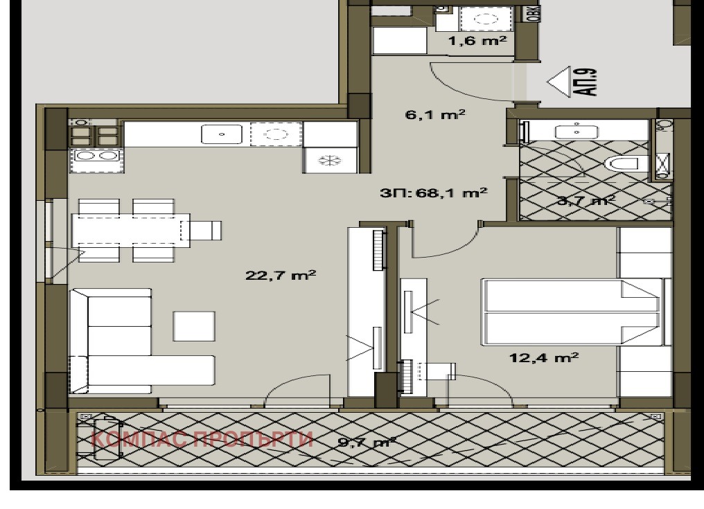
ЖИЛИЩНА ПЛОЩ: 68 квадратни метра.
РАЗПРЕДЕЛЕНИЕ: входно антре с нисша за гардероб, просторен хол с кухненски бокс и балкон, спални, баня с тоалетна.
ОСОБЕНОСТИ: 2 етаж от 3. Изложение - юг/изток. Отопление: електричество.
Сградата е в процес на строителство и ще бъде завършена средата на 2027г.
/ Срокове на строителство: Акт 14 - м.04.2026г., Акт 15 - м.04.2027г. и Акт 16 - м.08.2027г./
Апартаментите се предават на шпакловка и замазка. Сграда с един вход и 3 апартамета на етаж, общо десет апартамента.
Предлагат се паркоместа и гаражи /две паркоместа и един подземен гараж, със съотетни цени - 20500 , 22500 и 27000 / в подземното ниво на сградата, свързани чрез топла връзка - стълбище и асансьор с горните нива на сградата.
Напълно завършени общи части. Контролиран достъп.
Инвеститор на сградата е доказана фирма с традиции и с характерни, стилни фасади, предлагаща европейски стандарт на качество в изпълнението и вложените материали.
ПРЕДИМСТВА:
- бутикова сграда;
- близост до паркови пространства;
- иновативно и качествено изпълнение.
Разсрочена схема на плащане.
В сградата се предлагат и други двустайни и тристайни апартаменти.
За повече информация се обадете на 0897823706







