Агенция 'G6' Ви представя 2-стаен апартамент в центъра на с. Владая.
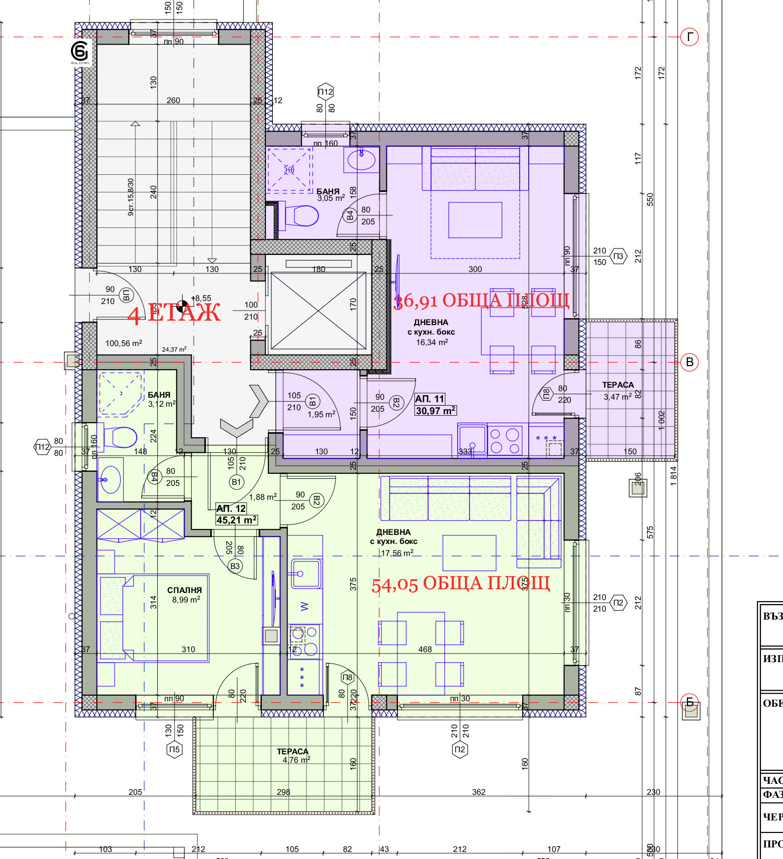
Застроената площ на апартамента е 45.21кв.м.
Разпределението е следното: антре, дневна с кухненски бокс и трапезария, спалня, баня с тоалетна и тераса.
Отоплението е на ток.
Тухли 'Wienerberger'.
6 - камерна дограма с двоен стъклопакет, като има възможност да се постави троен стъклопакет.
10см. топлоизолация 'Baumit Harmony'.
Травертин на първи етаж.
Атрактивни схеми на плащане.
Опция за закупуване на паркоместа и мазе.
Разполагаме с други предложения в сградата.
В близост са: автобусни спирки, супермаркет 'Фреш', училище, читалище, детска градина, конна база и др.
Бърз достъп до гр. София.
10 мин с кола от 'Околовръстен път'.
15 мин. с кола от метростанция.
20 мин от кв. Център.
Агенцията осигурява пълно юридическо обслужване, както и съдействие при банково финансиране на покупко-продажбата.
За повече информация и запазване час за оглед не се колебайте, да ни позвъните или да ни изпратите съобщение чрез Viber или WhatsApp на следния телефонен номер: +359 898 65 25 28.







