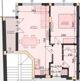
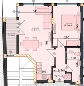
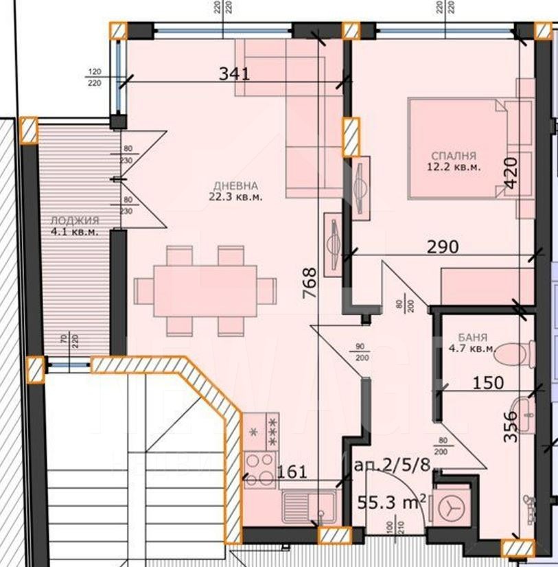
Представяме ви уютен двустаен апартамент, в гр. Варна, ул. 'Никола Козлев' 14, разположен на среден етаж в нова тухлена сграда, пред АКТ15, с асансьор. Жилището е с оптимално разпределение и се състои от: хол с кухня, спалня, баня с тоалет, тераса, входно антре и килер.
Апартаментът е с много добра локация, в район с отлична инфраструктура и комуникации, в близост до магазини, училища и автобусни спирки. Сградата е нова, което гарантира модерни строителни технологии и високо качество на изпълнение.
Не пропускайте възможността да придобиете този имот с отлични перспективи за инвестиция или за комфортно обитаване!
Обадете се и цитирайте код на оферта 22







