Открийте мястото, където ще се чувствате у дома от първия момент.
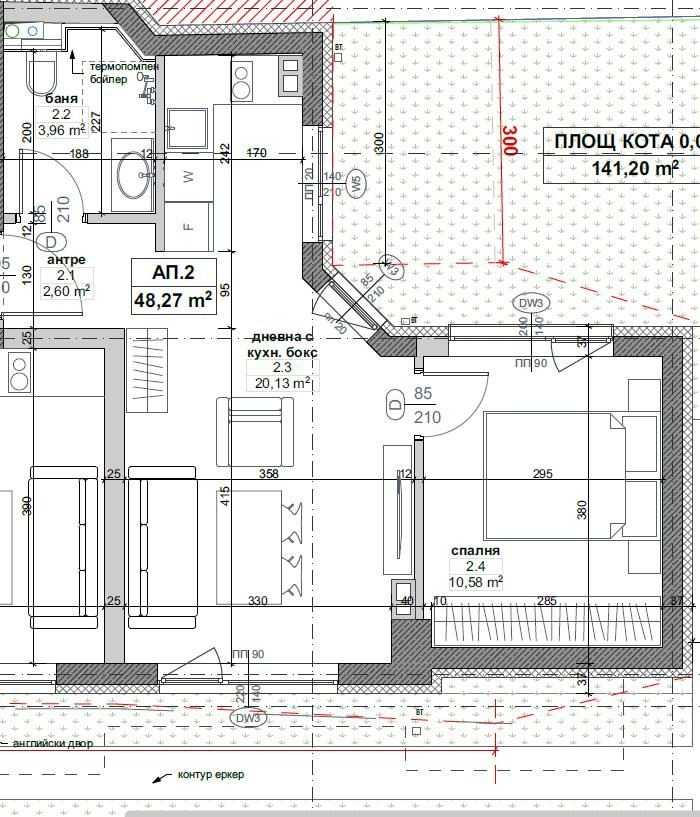
Титан Пропъртис с радост предлага на Вашето внимание двустаен апартамент за продажба в ж.к. Орландовци. Жилището с площ 65.27 кв.м се намира на 1-ви етаж в четириетажна сграда в строеж, планирана за завършване през 2027 г. Изложението е изток/юг. Разпределението включва входно антре, хол с кухненски бокс, спалня и баня с тоалетна. Отоплението е на електричество. Имотът е в строеж, което позволява избор на финално обзавеждане и довършителни работи по личен вкус.
В близост до имота ще намерите:
- Основно училище: 58 ОУ 'Сергей Румянцев' на 360 метра
- Училище: ДГ 149 'Зорница' на 318 метра
- Банкомат: ATM unicredit bulbank на 211 метра
- Болница: МЦ 'Деца с проблеми в развитието' на 403 метра
- Аптека: SOpharmacy на 358 метра
- Автобусна спирка: КВ. ОРЛАНДОВЦИ на 500 метра
- Автобусна спирка: КВ. ОРЛАНДОВЦИ на 497 метра
'С нас, вашето търсене на имот завършва с усмивка.'
За оглед на това и други атрактивни предложения, не се колебайте да ни потърсите на посочения телефон или да ни изпратите данните си чрез формата за запитване на сайта.
Реф. номер: 2100817.







