ACTIVE PROPERTIES: www.activepropertiesbg.com
Двустаен апартамент в престижен затворен комплекс! Среден! Вътрешен! Изцяло покрит! Статут - апартамент! Паркомясто/гараж!
ACTIVE PROPERTIES представя нов жилищен комплекс от затворен тип, създаден с мисъл за комфорт, сигурност и високо качество на живот. Проектът се намира в един от най-предпочитаните квартали на Перник - кв.Изток, в близост до природа, парк и основни пътни артерии с бърз достъп до гр.София и центъра на Перник.
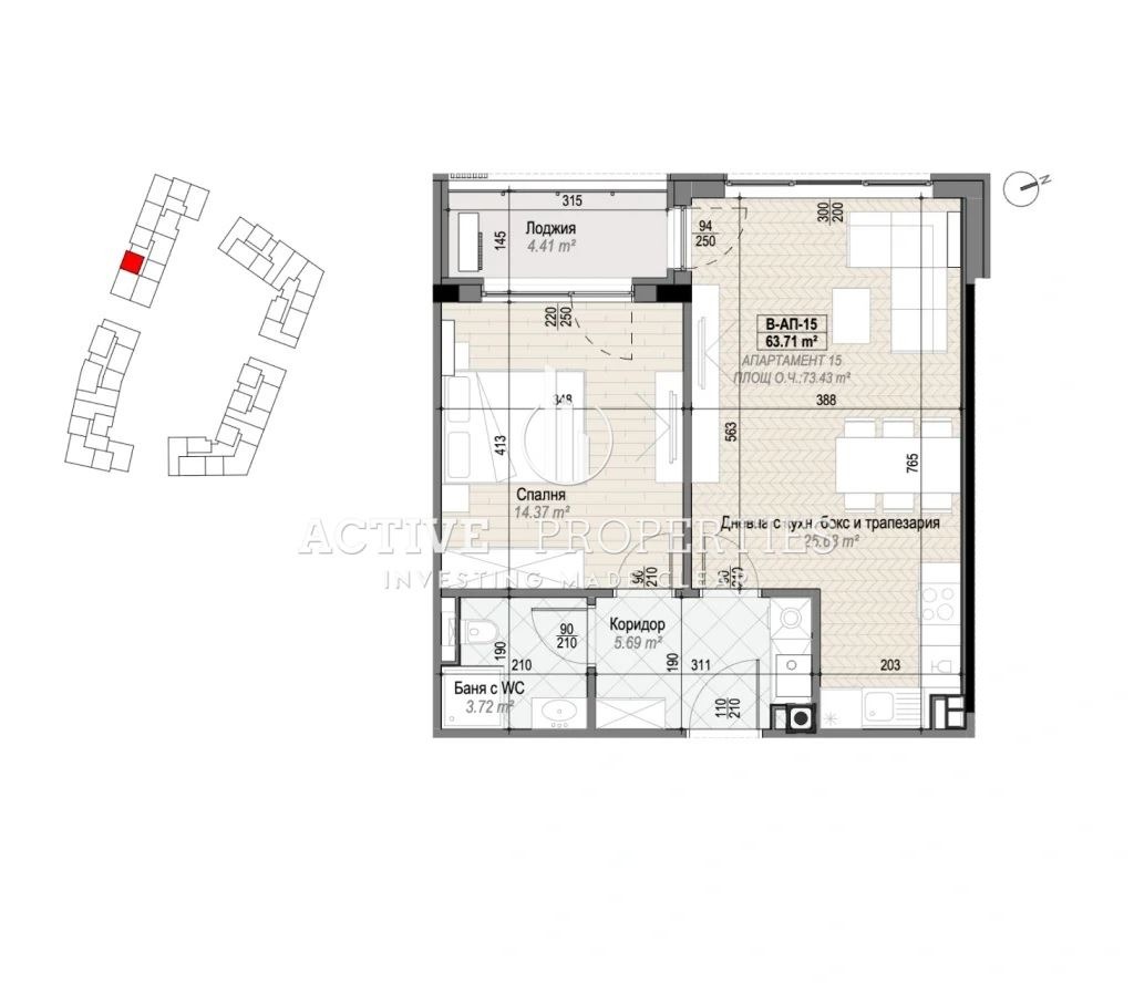
🏡Апартаментът е разположен в Сграда 2, на 3-ти етаж и има обща площ 73.21кв.м.
Разпределението е както следва: входно антре, просторен дневен тракт + кухненски бокс + трапезария, спалня, тераса с излаз от двете помещения, баня с тоалет.
Среден! Вътрешен! Изцяло покрит! Статут - апартамент, което го прави идеален за инвестиция или живеене!
✨ Основни предимства на комплекса:
Контролиран достъп и видеонаблюдение
Богато озеленен вътрешен двор с детски площадки, зони за спорт и отдих
Ниско и модерно строителство 4 сгради с функционални апартаменти, магазини и офиси
Паркиране открити и подземни паркоместа, както и индивидуални гаражи
Осигурена поддръжка на сградите и зелените площи
Висок клас строителство и доказан инвеститор
📍 Локация:
Комплексът се намира в непосредствена близост до:
Парк Иглика и стадиона
Футболно игрище
Кауфланд и Фантастико
ЖП и автобусна спирка
Район с нова инфраструктура и ниско застрояване
Спокойна среда с красиви гледки към Витоша и боровата гора
Състояние: Имотът се издава съгласно БДС Екстериорна блиндирана врата. Под: нивелирана замазка подготвена за полагане на гранитогрес, паркет или настилка по Ваш избор. Стени: машинно обработена гипсова мазилка с турбозол подготвена за боя или тапет по ваш избор. Мокри Помещения: ръчно обработена циментова мазилка подготвена за полагане на фаянс и теракота. ВиК инсталация на тапа. ЕЛ инсталация: контакти, ключ и фасонки. ПВЦ дограма. Отоплението е предвидено на ГАЗ.
🏗️ Строителен статус и параметри:
Планиран завършек: февруари 2026 г.
Налични двустайни, тристайни и четиристайни апартаменти в другите сгради на комплекса, които са в начален етап на строеж.
Двустайни: от 73 м² РЗП - 107 800 с ДДС
Тристайни: от 111м² РЗП - 168 300 с ДДС
Цени: от 1459 /м² (с вкл. 100% ДДС)
💡 Защо да изберете този комплекс?
✔ Перфектна комбинация между градски комфорт и близост до природата
✔ Спокойна и зелена среда идеална за семейства с деца
✔ Удобен и бърз достъп до София и всички точки на гр. Перник
✔ Гарантирано качество и надежден инвеститор
📞 Свържете се с нас за повече информация и оглед:
ACTIVE PROPERTIES
📱 Тел.: 0883988868 - Алекс Евгениева
✉️ Email: [email protected]




