Представяме апартамент в нова модерна жилищна сграда, проектирана с мисъл за функционалност, естетика и комфортна жизнена среда. Архитектурата ѝ съчетава съвременен стил с практично разпределение, отговарящо на нуждите на съвременния градски човек.
Сградата се намира на изключително комуникативно място в близост до детска градина, спирки на градски транспорт и основни пътни артерии, осигуряващи бърз достъп до всички ключови точки на града. Местоположението ѝ я прави отличен избор както за живеене, така и за инвестиция.
В сградата са предвидени 59 апартамента двустайни, тристайни и студиа, създадени с внимание към всеки детайл и ориентирани към максимално удобство и функционалност. Апартаментите са проектирани така, че да отговорят на различни нужди и предпочитания на своите бъдещи обитатели.
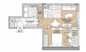
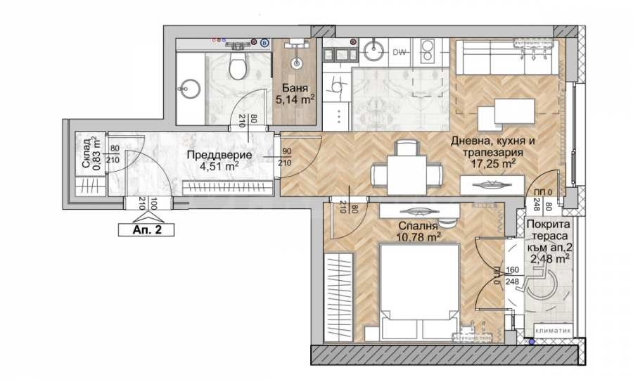
Разпределение на имота: обща площ 58.64 кв.м (нетна площ 50.09 кв.м + общи части 8.55 кв.м), разположен на първи етаж.
Сградата ще се издава в степен на завършеност 'на шпакловка и замазка', което предоставя възможност на новите собственици да завършат интериора според собствените си вкусове и предпочитания. Това дава възможност за персонализиране на жилището, което още повече подобрява изгледите за инвестиция.
Основните технически характеристики на проекта включват един подземен етаж с гаражи, паркоместа, мазета и технически помещения, както и двулентова рампа за автомобилен достъп. На разположение са девет жилищни етажа с разнообразие от апартаменти, а терасовидният последен етаж придава модерна визия на сградата.
Очакваният пусков срок на сградата е края на 2028 г., а изграждането ѝ ще бъде реализирано в няколко етапа, които ще осигурят плавен напредък и възможност за предварителни резервации. Предлаганите схеми на плащане ще бъдат гъвкави, с възможности за разсрочено плащане, което ще улесни закупуването на апартамент.
Схема на плащане:
10% - предварителен ...
За повече информация свържете се с нас и цитирайте референтния номер на имота. Моля, кажете, че сте видeли обявата в този сайт.
Референтен номер: AP 135714
Тел: 0884 059 253, 02 402 91 92
Отговорен брокер:Камелия Ждерова
Без комисиона от купувача
Виж всички обяви в superimoti.bazar.bg или тук



