БИЛДИНГ БОКС предлага за продажба двустаен апартамент в кв. 'Малинова долина'.
На 100 метра от НСА 'Васил Левски', в близост до спирки на градски транспорт, здравни заведения, спортно игрище, хранителни магазини, заведения и детски площадки.
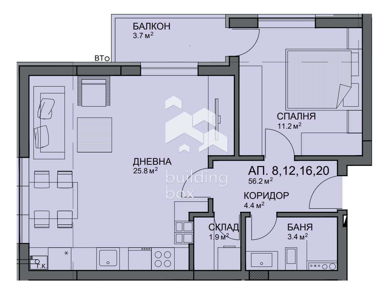
Апартаментът е със застроена площ 56.20 кв.м, с функционално разпределение, позициониран на 2-ри етаж oт общо 7. Продава на шпакловка и замазка.
Състои се от дневна с кухненски бокс, спалня, баня с тоалетна, склад и лоджия.
Отоплението е на Газ.
Изложението е запад - изгледът е към вътрешни зелени площи.
С четири сгради зад гърба си и много доволни клиенти, инвеститорът предлага качество на строителството и точно спазване на сроковете за изпълнение!
Сградата е с АКТ 14 и ще бъде завършена до края на 2025г.
Има възможност за покупка на подземни гаражи и паркоместа, както и на външни паркоместа.
БИЛДИНГ БОКС предоставя безплатна консултация и съдействие при финансиране на избрания от Вас имот.
Оферта 13772







