Galiano Estates представя двустаен апартамент в Бистрица.
Апартамента е разположен в малка бутикова сграда, състояща се от 10 апартамента с предвидени паркоместа към всеки.
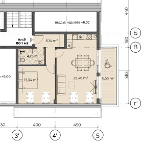
Разпределение: Входно антре, мокро помещение, баня с тоалетна, дневна с трапезария и кухненски бокс, спалня, Тераса.
Района е изключително спокоен, с красива природа и в същото време на кратко разстояние от града.
Има възможност за закупуване на подземни паркоместа и гаражи.
В сградата има и други двустайни и тристайни апартаменти за продажба.
Цената на имота е без ДДС.
Оферта: 6167







