Piccadilly Residence жилище от ново поколение в сърцето на Бургас! Комбинация от стилна архитектура, удобство и комфорт, създадена за съвременния градски човек.
Проект разположен на площ 9645 кв.м. съставляващ сграда със смесено предназначение и се състои от един сутерен, един полусутерен, един изцяло надземен етаж и до 14 етажа над тях. Обособени са 6 /шест/ входа, разделени на четири секции, като входове Б,В,Г,Д и Е са жилищни, а вход А е Апартхотел.
На партерния етаж ще има супермаркет-Лидъл, две аптеки и медицински център.
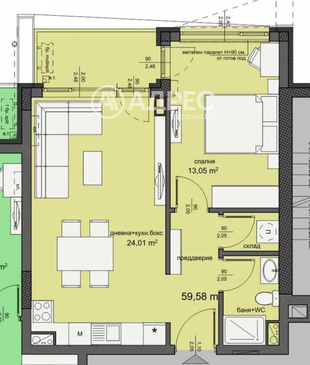
Жилищата за продажба са 270 единици- двустайни, тристайни и многостайни апартаменти.
Осигурено паркиране в границите на имота - 447 броя паркоместа 159 броя в сутерена , 92 броя в полусутерена, 138 броя в надземния етаж и 58 открити външни паркоместа около сградата.
Простор и естествена светлина благодарение на тавани със средна височина от 2.90 м
Троен стъклопакет с двуосово отваряеми прозорци за максимален комфорт и шумоизолация
PVC дограма REHAU с иновативно стъкло 4 сезона за идеален микроклимат през цялата година
Входни врати от най-висок клас сигурност, които осигуряват спокойствие и защита
Подготвена инсталация за климатици във всеки апартамент без нужда от допълнителни ремонти
Smart домофонна система с управление през мобилно приложение
СОТ окабеляване на входните врати за допълнителна сигурност
Звукоизолация на стени и подове, гарантираща тишина и уединение
Възможност за оптичен интернет и телевизия с най-висока скорост
LED осветление с мултизонално управление в общите части за по-нисък разход и модерна визия
Готовност за ползване монтирани ключове, контакти и висококачествени електроинсталации
Енергийна ефективност клас А, осигуряваща по-ниски разходи за поддръжка и по-здравословна среда
Зелен парк с гледка към града и морето.
Асансьори отис от най-висок клас и скорост
Супермаркет LIDL и магазин DM за ежедневни покупки
Аптека и медицински център за детоксикация
Апартаменти със собствени зелени дворове съчетание на уюта на къща със сигурността на жилищен комплекс
Инфраструктура за умен дом решения възможност за интегриране на смарт технологии според нуждите на собствениците
Специално проектирани зони за домашни любимци, така че и те да са част от удобния живот
Обади се сега и цитирай този код 671796







