2- стаен апартамент с голяма озеленена градина | До Гребната база | с AКТ16
📍 Локация: гр. Пловдив, кв. Христо Смирненски | Цена: 152 999 | Реф. 83261
📞 Консултант Недвижими Имоти: Николас Екман | +359895501036
Основни предимства:
Ново строителство, висок клас изпълнение
Акт 16 готов за нанасяне
Собствена голяма дворна градина с директен достъп от хола и спалнята идеално място за отдих и семейни моменти
Отлична локация на метри от Гребната база
Подходящ както за лично ползване, така и за инвестиция / отдаване под наем
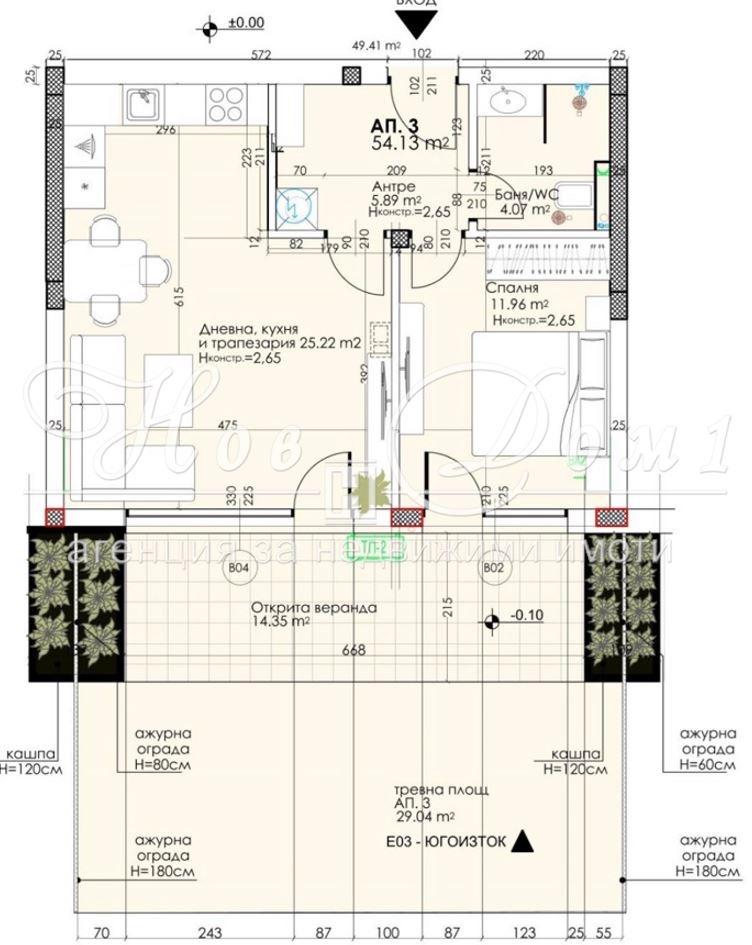
Площ: 75 кв.м
Разпределение:
Просторна дневна с кухня и трапезария
Спалня с излаз към градината
Баня с тоалетна
Антре
Веранда и озеленен частен двор
🛠️ Довършителни работи:
Естествен паркет
МДФ интериорни врати
Водно подово отопление
Заготовка за електрически щори и пердета
Котел
📞 За повече информация и оглед:
Вашият консултант: Николас Екман
📱 Телефон / Viber / WhatsApp: +359895501036







