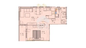
ЕКСКЛУЗИВНО! ЕРА Вива продава двустаен апартамент 'до ключ' с паркомясто в новопостроена тухлена сграда в кв. Траката, гр. Варна. Апартаментът се състои от входно антре, дневна с кухня и трапезария /22.30 кв.м./, спалня /14.40 кв.м./, баня с тоалетна и веранда с площ от 5 кв.м. Изложението е югозападно. Жилището се предлага завършено 'до ключ', след качествен ремонт, с оборудвани санитарни помещения. Поставени са нови интериорни врати, ПВЦ дограма и подови настилки. Прилежащо избено помещение с площ от 3.70 кв.м. За повече информация вж. раздел 'План'.
Тухлена сграда пред Акт 15 от затворен тип с контролиран достъп, луксозни общи части, с асансьор и без такса поддръжка. Използваните материали и технологии са съобразени с последните иновации в строителния бранш, гарантирайки устойчивост и енергийна ефективност. Има възможност за закупуване на паркомясто на цена от 18 000 евро.
Тих и спокоен район, на 20 м от автобусна спирка. В близост има денонощен супермаркет. Сградата се намира на 3 км от центъра на града и на 1 км от модерния курорт Св. Св. Константин и Елена.
Оферта 1009693



