Агенция DEAL ESTATE предлага включване в строеж в модерна и уютна сграда, разположена на тихо и спокойно място с удобен достъп до главен булевард.
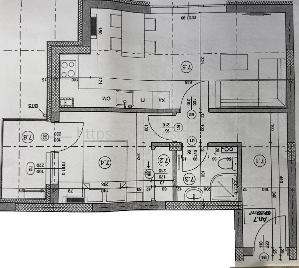
Предлаганият имот е с площ 63,33 кв.м., състоящ се от:
входно антре;
всекидневна с кухненски бокс;
спалня;
баня с тоалетна;
тераса;
Степен на завършеност:
Стени и тавани: шпакловка;
Под: циментова замазка;
PVC дограма;
Блиндирана входна врата;
Ел. инсталация до точка, ВиК до тапа;
Локация: тих и зелен район в близост до училище, детска градина, търговски обекти и спирка на градски транспорт.
Обява 1318.
Виж всички обяви в deal-estate.bazar.bg или тук
        
       
         
         
         
         
             
             
             
            





