ЕРА Надежда продава ексклузивно нов проект в кв. Левски.
Сградата очаква Разрешение за строеж началото на годината, като имате възможност да запазите желания от Ваш имот с резервационен депозит.
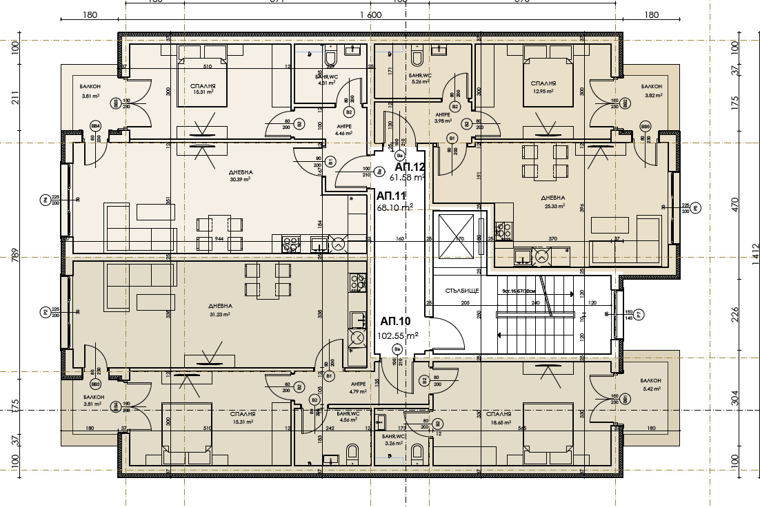
В сградата са проектирани дву- и тристайни жилища, с отлични разпределения и изложения.
Модерно ново строителство с отлично качество и функционални разпределения!
Основни предимства:
Сграда с елегантна архитектура и висок клас материали
Апартаменти с оптимално изложение и просторни тераси
Гъвкави схеми на плащане
Контрол на достъпа и видеонаблюдение
Паркоместа и гаражи
Локация:
Улица Летоструй , с бърз достъп до центъра и основни булеварди.
Не пропускайте възможността да изберете своя нов дом в един от най-желаните райони на София!
Предлаганият от нас имот е двустаен 11, намира се на петижилищен етаж, със западно изложение.
- 68.10 кв.м. чиста площ, с общи части 79.38 кв.м., като дневната е с чиста площ 30.39 кв.м., спалня 15.31 кв.м., баня с тоалетна 4.31 кв.м.,, антре 4.46 кв.м., балкон.
Оферта 3304608







