Представяме двустаен апартамент за продажба в нова бутикова сграда в кв. 'Драгалевци'. Районът предоставя тиха жилищна атмосфера, изпълнена с красиви гледки и природни дадености, същевременно връзката с динамиката на града се осъществява посредством бързия достъп до големи пътни артерии - Околовръстен път и бул 'Черни връх'.
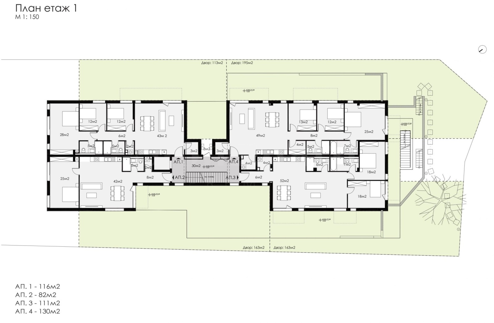
Жилището е ситуирано на партерен етаж и се състои от всекидневна с кухня, спалня, баня с тоалетна, сервизно помещение и собствен двор с площ 163кв.м.
Площообразуване:
обща площ - 96.38 кв.м;
общи части - 14.38 кв.м;
чиста площ - 82 кв.м;
двор - 163 кв.м;
към апартамента има мазе с площ 4 кв.м.
Сградата е бутикова, от затворен тип и предлага богато озеленен двор и голям брой дървета, за осигуряване на прохладен микроклимат през лятото. Изпълнението е висококачествено, предвидено предимно с ествествени материали - фасада с облицовка от естествен камък и частична облицовка от естествена дървесина - сибирска лиственица.Жилищата са с високи тавани, висок клас алуминиева дограма и френско остъкляване. Подходът към апартаментите е през просторно фоайе, а вертикалната комуникация се осъществява посредством асансьор и представително стълбище с естествено осветление и проветряване.
Апартаментът се предлага по БДС, с плуващи подови замазки върху слой от шумоизолация, които повишават комфорта и защитата от шум и алуминиева дограма, отговаряща на всички съвременни стандарти с панорамно остъкляване към планината и града.
Има възможност за закупуване на подземно паркомясто на цена 30 000 Евро без ДДС.
За допълнителна информация и организиране на оглед, моля свържете се с отговорния брокер по офертата.
Цената на имота е 289 140 евро / 565 508.69 лв. без ДДС или 346 968 евро / 678 610.42 лв. с ДДС. Данъчен кредит може да се ползва при определени условия.
За повече информация свържете се с нас и цитирайте референтния номер на имота. Моля, кажете, че сте видeли обявата в този сайт.
Референтен номер: SOF-111946
Тел: +359 889 007 010
Моб: +359 877 777 888 (WhatsApp, Viber, SMS)
Отговорен брокер:Стоунхард ПРЕМИЪР
Без комисиона от купувача
Виж всички обяви в stonehard.bazar.bg или тук







