Представяме двустаен апартамент в нов жилищен комплекс от затворен тип с богато озеленени територии в кв. 'Манастирски ливади - Изток'. Местоположението е в южната и най-слънчева част на квартала, в близост до бъдещ речен парк. Комплексът е проектиран с внимание и грижа, готов да осигури на своите обитатели спокойна обстановка за живот в тиха и зелена среда.
Етап на строителство - на изкуп. Очаквано завършване - януари 2026 г.
Параметри на имота
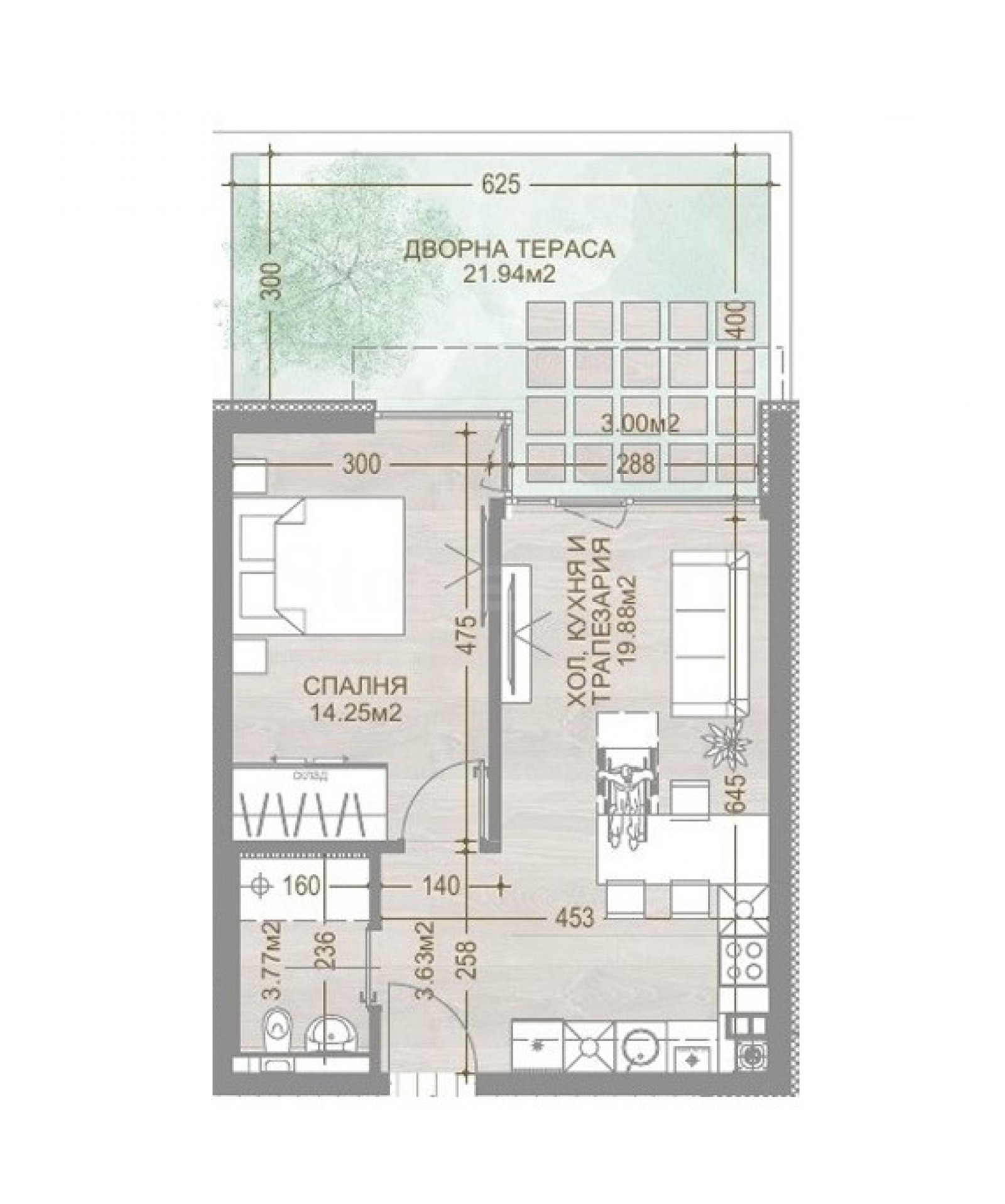
Жилището с обща площ от 59.86 кв.м е разположено на партерен етаж от общо 6 и има следното разпределение:
антре;
всекидневна с кухня и трапезария;
спалня;
баня с тоалетна;
дворна тераса с площ от 21.94 кв.м и излаз от двете стаи.
За комплекса
Комплексът се състои от четири сгради на по 6 етажа, с проектирани офиси и апартаменти от типа двустаен, тристаен, четиристаен и многостаен. Имотите са с функционални разпределения, като повечето са ориентирани на юг, югоизток и югозапад, и разполагат с гледки към Витоша. Жилищата на ниво партер разполагат със собствени дворове, а тези на последните нива - с прекрасни просторни тераси.
Паркирането е решено изцяло на две подземни паркоместа, което позволява свободния външен терен, с площ около 3000 кв.м, да бъде богато озеленен и с контролиран достъп, което да допринася за комфортната и сигурна среда за живот.
Технически характеристики:
монолитна стоманобетонна конструкция, проектирана по Еврокод;
зидария изцяло с керамични блокове, тип Winerberger;
покрив с 16 см топлоизолация HPS, замазки с наклони вътрешно отводняване; два пласта с вносни материали. Гаранция на покривна система 15 години;
5-камерна PVС дограма, двоен стъклопакет, с външно слънцезащитно стъкло с дебелина 6 мм;
алуминиеви външни и вътрешни парапети;
външна топлоизолационна система 10 см EPS и/или вата и керамични тухли и композитен материал по ...
За повече информация свържете се с нас и цитирайте референтния номер на имота. Моля, кажете, че сте видeли обявата в този сайт.
Референтен номер: SOF-133811
Тел: +359 889 007 010
Моб: +359 877 777 888 (WhatsApp, Viber, SMS)
Отговорен брокер:Стоунхард ПРЕМИЪР
Без комисиона от купувача
Виж всички обяви в stonehard.bazar.bg или тук







