Референтен номер: AP 134700
Екслузивно представяме за продажба апартамент в модерна градска резиденция с отличителен дизайн разположена в престижната южна част на София. Тя съчетава елегантна архитектура, премиум материали и съвременни технологии.
Сградата се намира в престижната южна част на столицата в непосредствена близост до Зоологическата градина, само на 950 м от Paradise Center и метростанция Витоша . Разположена на тиха вътрешна улица, сградата осигурява уединение и сигурност, съчетани с бърза връзка през новия булевард Филип Кутев към бул. Черни връх и Симеоновско шосе. Районът съчетава тишина, отлична инфраструктура и бърз достъп до ключови точки на града.
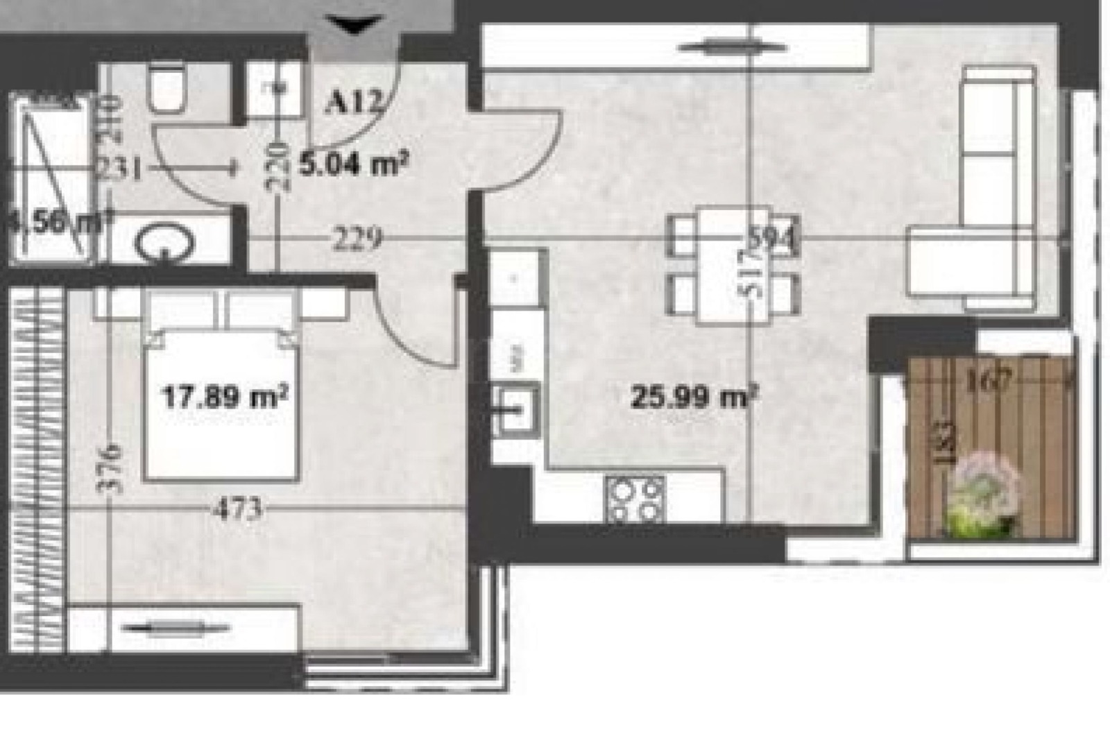
Апартаментът е ситуиран на трети етаж с обща площ 82.98 кв.м и има следното разпределение:
коридор;
всекидневна с кухня и кът за хранене,
спалня;
баня с тоалетна;
лоджия.
Сградата е с пет надземни етажа и един подземен. На подземния са разположени гаражи, паркоместа и мазета. На останалите пет жилищни етажа са разположени 14 апартамента от тип двустайни, тристайни и четиристайни.
Имотите съчетават светли пространства, изчистени форми и усещане за спокойствие всичко е проектирано с внимание към детайла и с мисъл за онези, които ценят качеството и модерния начин на живот. Иновативна концепция, съчетаваща модерна архитектура, връзка с природата и новите технологии.
Модерно и качествено строителство, много висок стандарт на качество на използваните материали.
Технически характеристики:
Енергиен клас А - Сградата е проектирана с висока енергийна ефективност, осигуряваща ниско енергопотребление и оптимални разходи за отопление и охлаждане за по-устойчив и комфортен начин на живот.
Фотоволтаична система - Изградена ...
Цената на имота е 210 500 евро / 411 702.22 лв. без ДДС или 252 600 евро / 494 042.66 лв. с ДДС. Данъчен кредит може да се ползва при определени условия.
За повече информация свържете се с нас и цитирайте референтния номер на имота. Моля, кажете, че сте видeли обявата в този сайт.
Референтен номер: AP 134700
Тел: +359 889 007 010
Моб: +359 877 777 888 (WhatsApp, Viber, SMS)
Отговорен брокер:Стоунхард ПРЕМИЪР
Без комисиона от купувача







