код: 21554
Ексклузивно от Акцент Инвест! Без комисионна от Купувача! Директно от Инвеститор!
Акцент Ивест представя на Вашето внимание своя най-нов проект за Бутикова жилищна сграда, с отлична локация и нескриваема морска панорама, разположена само на 5 минути от к.к. Слънчев ден. Сградата се състои от 13 апартамента, разпределени на 6 жилищни етажа. На всеки етаж са разположени само по 2 апартамента.
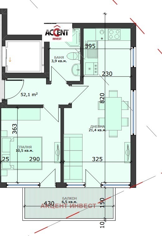
Апартамент 6 - 2-стаен, етаж 3-ти жилищен, обща площ 65,73 кв.м. Състои се от: коридор, спалня, дневна с кухня и трапезария, баня с тоалетна и тераса.
С луксозно изпълнени общи части и внимание към всеки детайл.
Предвидено начало на строителството Октомври 2025г.
Срок за изпълнение 24м.
Местоположение и разстояния:
До Международно Летище Варна - 15км;
До к.к.Златни Пясъци - 4км;
До к.к. Св.Св. Константин и Елена 2км;
До плажа - 500м;
До автобусна спирка - 300м;
До най-близък супермаркет - 500м;
До центъра на Варна - 10км;
В строителството и довършителните работи са заложени висококачествени материали.
Конструкция: Стоманобетонова конструкция и зидария изпълнена с Wienerberger Porotherm 25 N+F Light и Porotherm 12 N+F
Фасада:
Топлоизолационна система Termoflex 10см;
Висококачествена фасада, която успешно комбинира естествен камък и декоративни алуминиеви елементи.
Дограма 7-камерна (85мм) система, троен стъклопакет (44мм) с две специални стъкла (четири сезона + бяло + К стъкло) с газ аргон
Стъклени парапети със система от алуминиев профил.
Климатизация и вентилация: Изцяло положено трасе (тръби и кабел) с изводи към всяка стая. Обособени места за климатичните системи на задната фасада на сградата закрити с декоративни елементи. Инсталацията за отводняване на климатичните тела е включена към канализационната система на сградата.
Асансьор: ORONA Испания: Компанията е една от лидерите в световен мащаб в производството на пътнически асансьори. Асансьорите на ORONA се отличават с много високо качество на вложените матириали и комфорт при експлоатация.
8 лица 630 кг.
Безшумно движение
без машинно помещение
придвижване до най-близката спирка в случай на спиране на електричеството
бутони с Брайлова азбука
аварийно осветление
дигитално табло
Общи части: Напълно завършени общи части с поставени подови настилки от гранитогрес, боядисани стени и тавани, автоматично осветление с фотоклетки (по проект).
За поддръжката на общите частище се погрижи външна фирма Професионален домоуправител, избрана от общото събрание на собствениците.







