Характеристики на имота:
- етаж 5, с асансьор
- отопление: централно на ТЕЦ
- изложение: изток- гарантира топли утрини и естествена светлина през деня
- непреходен
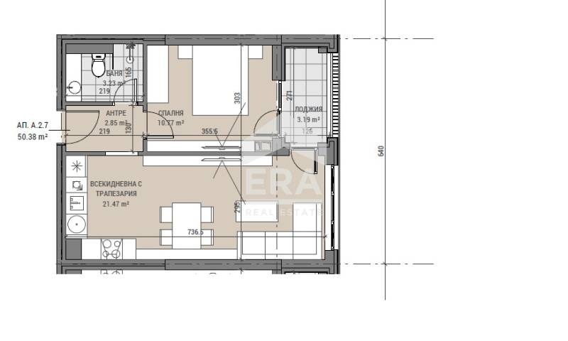
- разпределение: входно антре, дневна с кухненски бокс и трапезария, спалня, баня с тоалетна, тераса. Има възможност за закупуване на мазе в сутерен с допълнително доплащане за сумата от 8000 евро.
Сградата е проектирана с внимание към детайлите и съвременните изисквания за качество и комфорт. Локацията предлага бърз достъп до основни булеварди и не далеч от метро, както и близост до училища, детски градини, магазини и спортни центрове.
Този имот е отличен избор както за собствено ползване, така и за инвестиция с цел отдаване под наем.
Оферта 3304539
Виж всички обяви в eranadejda.bazar.bg или тук







