Премиум Имоти предлага за продажба просторно ателие в модерна сграда с Разрешение за ползване (Акт 16), в непосредствена близост до метростанция Горна баня , кв. Овча купел 2.
Имотът е част от проект за преустройство на големи апартаменти в по-функционални жилища, като новите обекти вече имат Акт 15 и ще получат Разрешение за ползване края на 2025г. - началото на 2026г.
Сградата е напълно завършена и обитавана, с отлична локация само на 50 м от метрото.
Характеристики на имота:
- Етаж: 5 от 8
- Застроена площ: 63,6 кв.м.
- Обща площ: 72,69 кв.м.
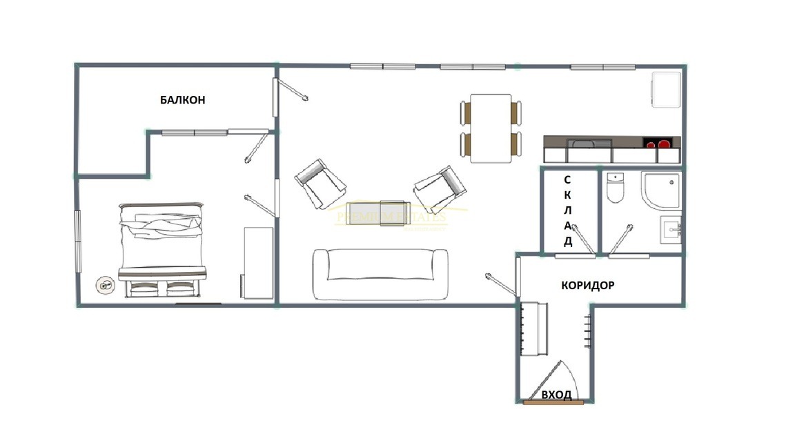
- Разпределение: антре, баня с тоалетна, просторна всекидневна с кухненски бокс (възможност за обособяване на втора стая),балкон и спалня
- Състояние: на шпакловка и замазка
- Възможност за закупуване на подземно паркомясто и мазе
Цена на ателието: 152000 евро с ДДС
Сградата е с модерна визия,отлични общи части и контролиран достъп.
В същата сграда предлагаме още няколко ателиета и апартаменти с различни квадратури и цени.
За повече информация и огледи, цитирайте оферта 134214 на тел. 0888988871







