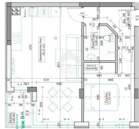
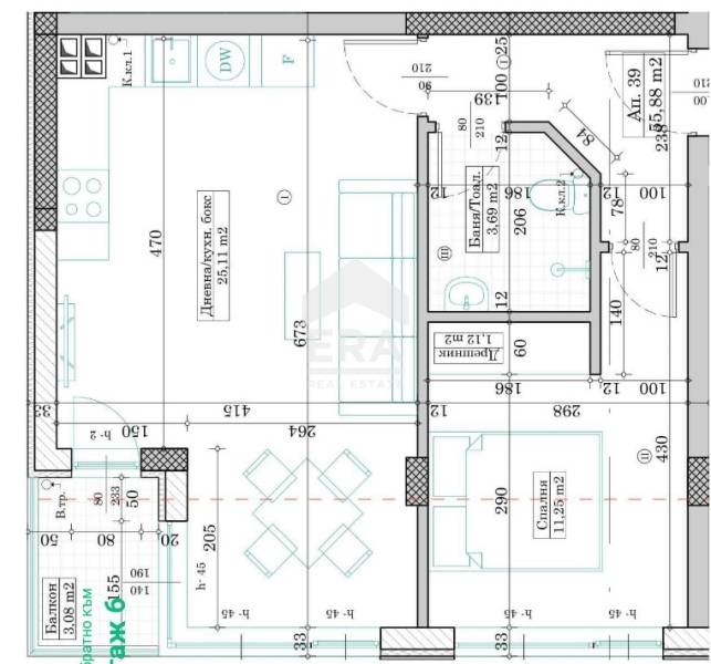
ЕРА Вива продава двустаен апартамент в новострояща се жилищна сграда в кв. Левски, гр. Варна. Жилището е със застроена площ от 55.88 кв.м. /64.88 кв.м. с общите части/ и е разположено на шести етаж. Имотът е функционално разпределен, включващ просторна дневна с кухненски кът /25.11 кв.м./, спалня с дрешник /12.37 кв.м./, баня с тоалетна /3.69 кв.м./ и балкон /3.08 кв.м./. Стаите са светли, с правилни форми. Степен на завършеност по БДС - на шпакловка и замазка, с поставена ПВЦ дограма и блиндирана входна врата. Отоплението е предвидено на ток.
Mодерна новострояща се сграда, която ще впечатли с изключителен стил и качество. Сградата ще разполага с асансьор и домофонна система за удобство и сигурност на живущите. Освен това, има възможност за закупуване на открито или закрито паркомясто. Използваните материали и технологии са съобразени с последните иновации в строителния бранш, гарантирайки устойчивост и енергийна ефективност. Очаквано въвеждане в експлоатация май 2026 г.
Район с отлично изградена инфраструктура. В близост до УМБАЛ Света Марина, Втори корпус на Икономически университет, детска градина, магазини, ателиета за услуги и спирки на градския транспорт.
Оферта 1009680







