Тази сграда е Вашият сигурен избор инвеститорът е сред най-доказаните на пазара, с множество успешно реализирани проекти. Това е гаранция за качество, спазени срокове и спокойствие за Вас - бъдещите собственици.
Архитектурата на сградата е със собствен характер съчетание между модерен дизайн и комфортни функционални разпределения. Всичко това гарантирано с висококачествени материали, създадени да издържат във времето и да придадат на всеки квадратен метър добавена стойност.
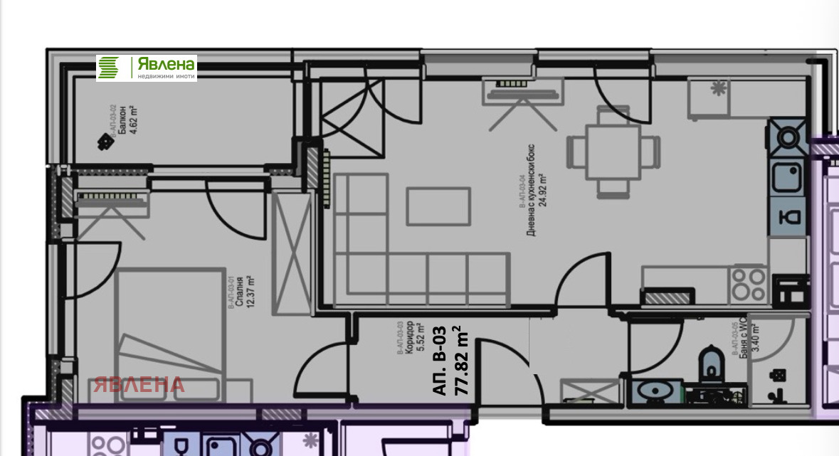
Апартаментът се намира на 2-ри етаж и има следното разпределение: входно антре, всекидневна с кухненски бокс, баня с тоалетна и балкон. В сградата има и други апартаменти на различни етажи - 2-стайни, 3-стайни и 4-стайни, както и 1 пентхаус на последен етаж. Има опция за покупка на паркоместа.
За да осигури максимално удобство за своите обитатели, сградата ще се отоплява на ТЕЦ, възможност за персонализирана климатизация ,ще има собствен вътрешен двор, видеонаблюдение и контрол на достъпа, подземен паркинг на две нива и др.
Побързайте да се свържете с нас за повече информация и запазете своя час за оглед с нас сега! (yavlenaCOM/162298)
Виж всички обяви в south_park.bazar.bg или тук
        
       
         
         
         
         
         
             
             
             
             
            






