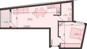
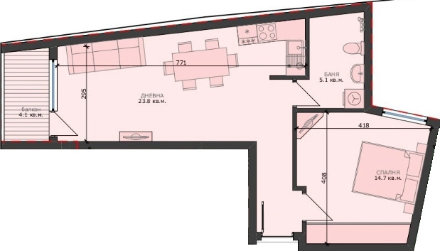
Предлагаме ви просторен и светъл двустаен апартамент, разположен в центъра на гр. Варна. Имотът е с обща площ от 62 кв.м и функционално разпределение:
Дневна 24 кв.м, с възможност за обособяване на кухненски бокс, трапезария и зона за почивка;
Спалня - 14,7 кв.м, уютна и тиха за пълноценен отдих;
Баня с тоалет - 5,1кв.м
Тераса - 4,1кв.м
Останалата площ включва общи части (по информация от собственика при нужда може да се уточни).
Имотът се намира в спокоен и добре устроен район с лесен достъп до градски транспорт, институции, банки, ресторанти, училища, детски градини, супермаркети и аптеки. Перфектен както за лично ползване, така и като инвестиция.
За повече информация и огледи:
📞Т. Савов - 089 900 5477📞
Виж всички обяви в 360estate.bazar.bg или тук







