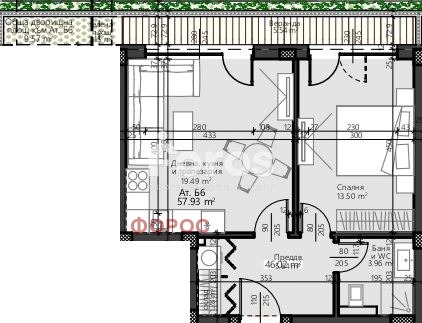
Двустаен апартамент, в новострояща се сграда, в кв.Сарафово, на 300 метра от плажната ивица.
Жилището е разположено на първи партерен със собствен двор.
Състои се от хол с кухненски бокс, спалня, баня с тоалет, коридор и тераса.
Изложение - север.
Степен на завършеност - до тапа.
Сградата е с два входа, на пет етажа, с асансьор, подземен гараж с паркоместа и гаражи, пет жилищни етажа, като първи партерен етаж е с апартаменти с двор, озеленен и разделен с жив плет.
Очакван Акт 16 - октомври 2027год.
В кооперацията се продават още:
Двустаен апартамент, южен, с площ от 63,39 кв.м. - цена 107837 евро
Тристаен апартамент, с площ от 147,13 кв.м. - цена 139774 евро
Паркомясто с площ от 33 кв.м. - цена 17000 евро
Брокер за контакти:Ирен Рангелова
Виж всички обяви в foros.bazar.bg или тук







