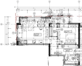
Продава функционален двустаен апартамент в гр. Елин Пелин, ул. Лесновска 34. Жилището е със застроена площ от 69,00 кв.м. и съответно 77,92 кв.м. обща площ, разпределена по следния начин: хол с кухненски кът, спалня с гардеробно, баня с , входно антре с коридор.
Имотът се намира на втори етаж в новострояща се сграда на 4 етажа и ще бъде завършен по БДС. Към апартамента може да бъде закупено външно парко място на цена 12 000 евро.
Отоплението на сградата е предвидено на газ. Дограмата е Salamander.





