ТОПИММО предлага за продажба двустайни и тристайни апартаменти в новострояща се сграда в бързо развиващия се ж.к. Владислав Варненчик I.
Проектът се състои от две тела, всяко снабдено с асансьор, подземен паркинг с паркоместа и гаражи, също така и външни паркоместа. Съвременен дизайн, модерна и изчистена фасада, правилни форми на стаите, светли и просторни помещения.
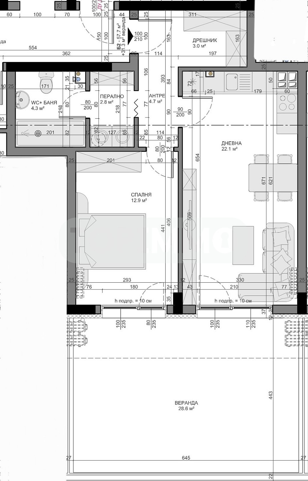
Имотът, който Ви представяме е разположен на първи висок етаж, с източно изложение и следното разпределение: антре с дрешник, всекидневна с кухненски бокс 22.1 кв.м. С излаз на собствена веранда 28.6 кв.м., спалня 13 кв.м., перално помещение, санитарен възел.
Апартаментът ще бъде издаден съгласно БДС стандарт. С възможност за закупуване на гараж или паркомясто. Разсрочени схеми на плащане.
Добра възможност за инвестиция в район само с новопостроени сгради, паркова среда, новоизграждащи се комплекси, болница, учебни заведение, както и удобна инфраструктура към всяка точка на града.
За повече информация - свържете се с нас! Референтен номер: PL-4416







