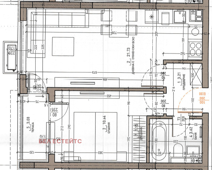
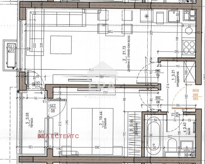
Имотът е с обща площ от 62 кв.м. и ЗП 51 кв.м., намира се на етаж 3 от общо 8 и е със западно изложение. Разпределение: входно антре, всекидневна с кухненски бокс, спалня, баня с тоалетна, тераса. Отоплението е на ТЕЦ.
Възможност за закупуване на подземни гаражи на цени от 30 000 евро.
Комплексът се намира на бул. Живко Сталев - удобна локация в близост до НСА, с бърз достъп до бул. Симеоновско шосе и Околовръстен път. Състои от три многофамилни жилищни сгради със зелени площи и детска площадка. На приземните етажи са предвидени търговски помещения.
Акт 16 се очаква до Декември 2025г.
ЕРА България е независим кредитен посредник към БНБ с номер BCI000024 и предоставя безплатна консултация и съдействие при финансиране на избрания от Вас имот.
Оферта 6000529
Виж всички обяви в belleestates.bazar.bg или тук
        
       
         
         
         
         
         
             
             
             
             
            






