🏗 НОВО СТРОИТЕЛСТВО! ДОКАЗАН СТРОИТЕЛ! ВЪЗМОЖНОСТ ЗА ПАРКОМЯСТО И ГАРАЖ!
Имоти Премиер предлага за продажба двустаен апартамент в новострояща се сграда в кв. Владиславово, гр. Варна. Сградата е с издадено разрешение за строеж и ще бъде изпълнена от доказан и коректен строител с безупречна репутация.
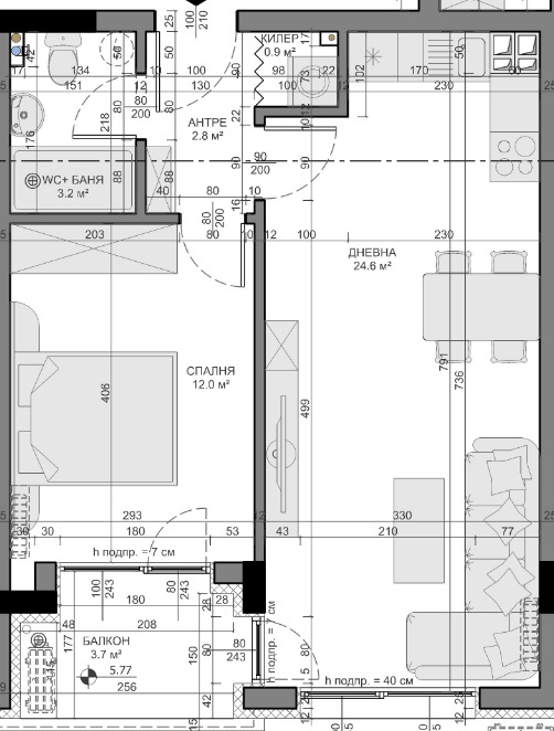
📐 Площ: 65 кв.м.
🏢 Етаж: 3 от 5
Жилището се състои от:
Входно антре
Просторна дневна с кухненски кът
Спалня
Баня с тоалетна
Тераса
🚗 Към сградата са предвидени външни и вътрешни паркоместа, както и гаражи удобство и сигурност за всеки собственик.
✨ Изпълнението ще бъде с висококачествени материали, модерен дизайн и внимание към всеки детайл.
🏘 Предлагат се различни типове апартаменти едностайни, двустайни и тристайни, с разнообразни квадратури и етажи.
📍 Локацията е отлична в близост до основни пътни артерии, магазини, училища, детски градини и спирки на градски транспорт.
✅ Подходящ както за живеене, така и за инвестиция с цел отдаване под наем.
📞 Код на офертата: 375234







