ЖИЛИЩНА СГРАДА PLISKA 2
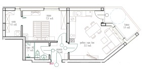
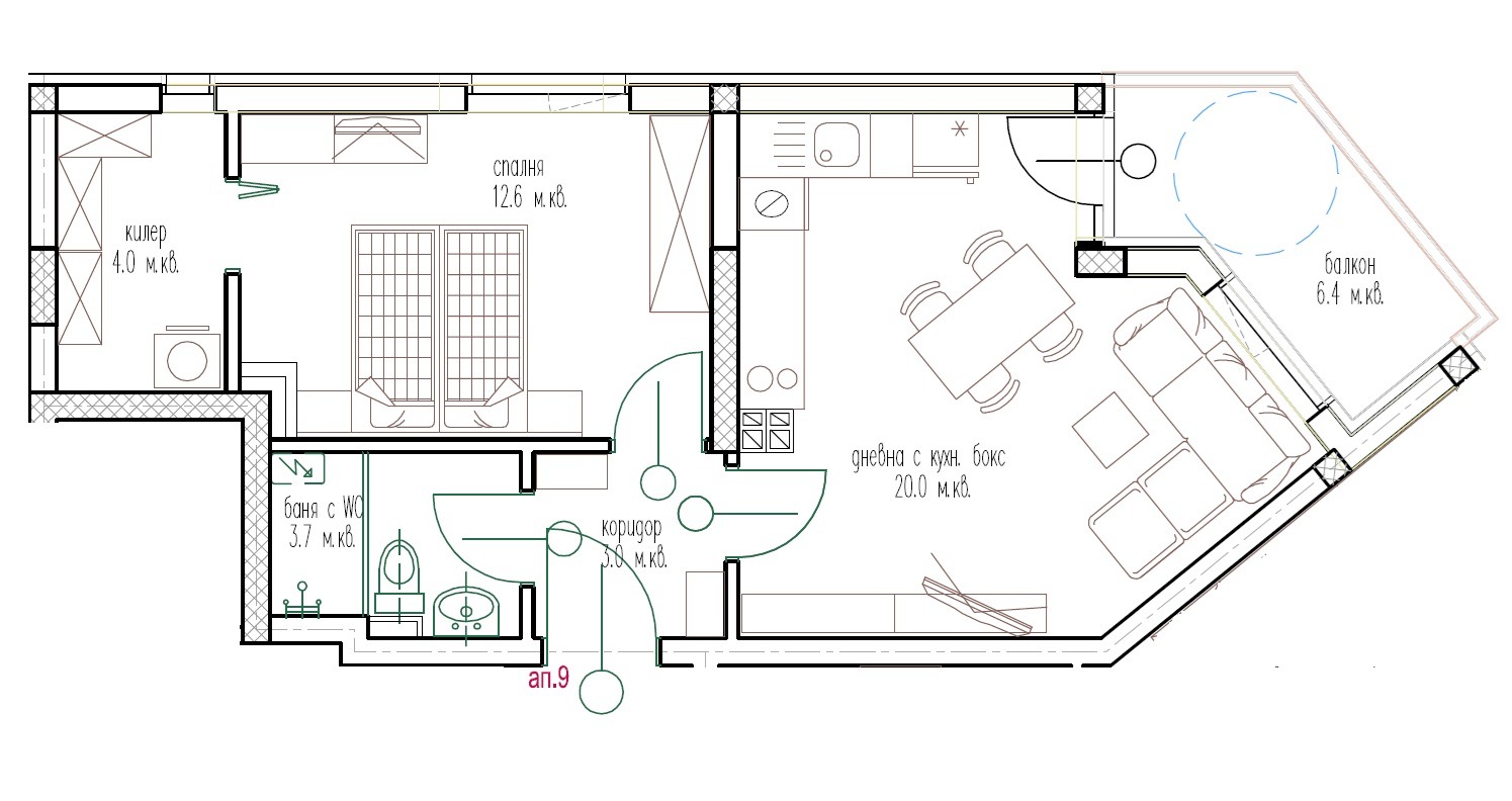
🏡 АПАРТАМЕНТ 9 ДВУСТАЕН
Площ: 68 кв.м
Цена: 102 000 евро
Разсрочено плащане
Изложение: Изток / Запад
Разпределение:
Дневен тракт, две спални, коридор, баня с тоалетна, килер и тераса.
📞 За контакти: 0898 50 65 65
________________________________________
За сградата
PLISKA 2 е луксозна жилищна сграда с контролиран достъп, разположена в широкия център на гр. Варна.
Проектът предлага 26 функционални апартамента двустайни, тристайни и четиристайни, с площи от 53 до 160 кв.м.
📅 Начало на строителството: началото на 2026 г.
________________________________________
Технически характеристики и качество на изпълнение
✅ Хидроизолация:
Основите се изпълняват със системи SIKA, гарантиращи дълготрайна защита и устойчивост.
✅ Тухлена зидария:
Сградата ще бъде изградена с австрийски тухли Wienerberger Porotherm (25 N+F, 12 N+F) 100% естествен материал с отлични шумо- и топлоизолационни свойства.
✅ Преградни стени между апартаментите:
Трислойна система с индекс на шумоизолация до Rw = 57 dB.
✅ Топлоизолация и мазилка:
BAUMIT Интегрирана система с 10-годишна писмена гаранция от Баумит България ЕООД.
✅ Фасада:
Модерен дизайн с минерална мазилка BAUMIT, френски прозорци и стъклени парапети от закалено стъкло.
Висок клас 5-камерна дограма.
✅ Асансьор:
Модерен електрически асансьор без машинно отделение.
✅ Степен на завършеност на апартаментите:
Машинно положена циментопясъчна замазка
Фина гипсова мазилка BAUMIT Ratio 1000L
Варо-циментова мазилка BAUMIT MPI 25 (в мокри помещения)
Гранитогрес SIKA с хидроизолационна основа за балконите
Блиндирана входна врата
Ключове и контакти SCHNEIDER ELECTRIC
✨ Елегантна визия. Висок клас материали. Директно от инвеститор.
📞 0898 50 65 65
Виж всички обяви в rehouse.bazar.bg или тук







