РЕЗЕРВИРАЙ СВОЯ ИМОТ СЕГА!
Все още има свободни двустайни и тристайни апартаменти с различни изложения, разпределения, квадратури и етажи!
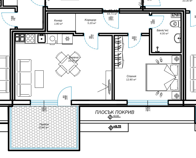
SPROPERTIES предлага двустаен апартамент до Варненски свободен университет Черноризец Храбър .
Сградата разполага с басейн, възможност за паркомясто и удобен достъп по асфалтов път, което я прави отличен избор както за живеене, така и за инвестиция.
Разпределение: дневна с кухненски бокс, спалня, баня с тоалетна, коридор и тераса.
Жилището е с правилни форми и функционално разпределение, осигуряващо комфорт и удобство.
Апартаментът се предлага по БДС с външна топлоизолация, PVC дограма, монтирана входна врата, подове на замазка и стени на шпакловка, както и изградени инсталации до тапа.
Свържете се с нас на посочения телефон, за повече информация и огледи!







