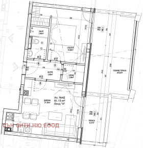
двустаен апартамент 42 (сграда А),с голяма тераса 25 кв.отделно от общата квадратура, в най-новият луксозен комплекс в кв.Манастирски ливади-изток ,с разрешение за строеж.Съвременен жилищен комплекс, разположен в тиха и зелена среда, непосредствено до детска градина и детска ясла,Мол България и големи хранителни вериги. Това е идеалното място за тези, които търсят комбинация от комфорт, удобство и спокойствие, без да се налага да правят компромиси с качеството на живот.За повече информация посетете нашия сайт .
https://manastirski3.homes/







