🏗️ НОВА СГРАДА В МАНАСТИРСКИ ЛИВАДИ ИЗТОК
Представяме Ви нова бутикова жилищна сграда в един от най-предпочитаните квартали на София Манастирски ливади Изток, Сградата пред разрешение за строеж и ще бъде изградена с висококачествени материали, съобразени с най-новите стандарти за енергийна ефективност и комфорт.
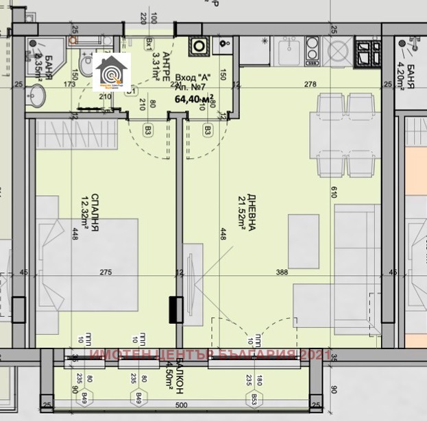
Предлагат се двустайни, тристайни и четиристайни апартаменти, с оптимални разпределения и функционални площи, които осигуряват уют и удобство за всяко семейство.
📍 Локация и удобства наблизо:
В непосредствена близост до бул. България, бул. Тодор Каблешков и Околовръстен път бърз достъп до центъра и всички части на града
На пешеходно разстояние от Billa, Lidl, Bulgaria Mall и множество заведения
В близост до детски градини, училища и медицински центрове
Район с развита инфраструктура и ново строителство, съчетаващ тишина, зеленина и градски комфорт
💰 Схема на плащане:
Изключително гъвкава схема на плащане, съобразена с възможностите на всеки клиент подходяща както за инвестиция, така и за личен дом.
🏠 Защо да изберете този проект:
Качествено строителство от доказан инвеститор
Отлична локация с потенциал за висока доходност
Разнообразие от апартаменти и възможност за индивидуален избор на етаж и гледка
Съвременна архитектура и модерна визия
👉 Свържете се с мен: Велислав Шопов.







