РАДУКАНОВ ЕСТЕЙТС предлага ЗА ПРОДАЖБА ЕДНОСТАЕН ( с възможност за преустройство в двустаен) АПАРТАМЕНТ в КАПИТОЛ РЕЗИДЕНС находящ се в район Сердика, на 5 мин от метростанция Централна гара.
В близост спирка на градски транспорт, магазини.
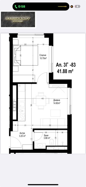
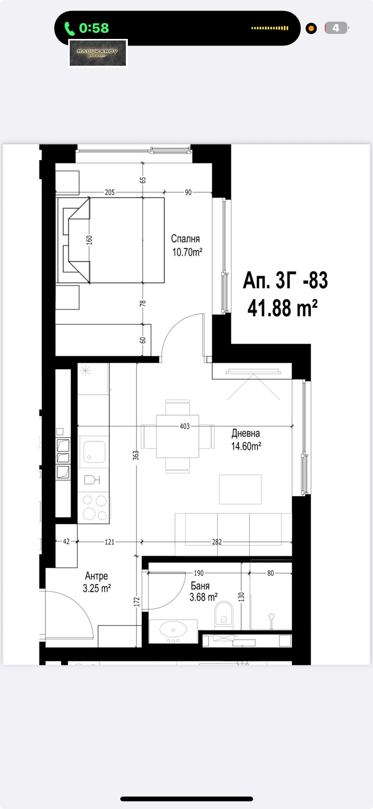
Разпределение на имота: антре, дневна с кухненски бокс и спалня, баня с тоалетна.
Изложение изток, североизток.
Квадратура -49,39 кв.м и мазе 4,69 кв.м.
Отопление- ТЕЦ.
Етаж - 8 от 17 етажа.
Асансьор, чип достъп, видеонаблюдение.
Акт 14. Очакван АКТ-16 април 2026 година.
За огледи: Милен Радуканов - 0893 33 73 55







