Акт 14! Метростанция! Източно Изложение / Дневна 26м2 / ТЕЦ / Изцяло Среден и Покрит / Топ Локация / Възможност за Гараж /
Референтен код 81519 в www.novdom1.bg!
Консултант недвижими имоти: Калоян Николов, Тел.: 0890 555 960
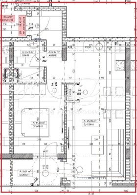
Апартаментът представлява:
Входно антре с място за Портманто с площ от 5.32м2;
Просторна Дневна с Кухненска част с площ от 25.63 кв.м.;
Две Чудесни НЕпреходни Спални с площ около 13м2,
Баня с Тоалетна;
Втора Тоалента;
Общ Балко към Трите Стаи;
Жилището е разположено на напълно Среден етаж 2-ри от общо 7;
Изложение ЗАПАД;
Изцяло Вътрешен, БЕЗ Преход, БЕЗ Отстъп и БЕЗ Скосяване;
Чудесно Разпределение, Правилни Форми на Стаите и Г-образно Входно Антре!
ЗП:
Общата площ на апартамента е 95.26м2;
Чистата площ е 84.21м2;
Статут 'Апартамент';
Отопление - ТЕЦ с хоризонтална инсталация - индивидуални топломери и без излишни разходи.
Опция за закупуването на Гараж!
*Още ЕКСКЛУЗИВНИ АПАРТАМЕНТИ в Сградата*
Двустайни от 129 990 EUR;
Тристайни от 169 990 EUR;
Четиристайни от 254 990 EUR.
Отлична Локация: Апартаментът се намира в един от най-предпочитаните за живеене и инвестиция райони на град София - кв. Слатина. На по-малко от 10мин, пешеходно разстояние от НОВОстроящата се МЕТРОСТАНЦИЯ. В непосредствена близост до пазар Слатина. Лесен и бърз достъп до главни пътни артерии, административни учреждения, банки, училища, детски градини, автобусни спирки, детски площадки, аптеки, търговски центрове, супермаркети, козметични студия, заведения и туристически атракции.
Състояние: Имотът се издава съгласно БДС: Екстериорна блиндирана врата Solid; Под - нивелирана замазка подготвена за полагане на гранитогрес, паркет или настилка по Ваш избор; Стени - машинно обработена гипсова мазилка с турбозол подготвена за боя; Мокри Помещения - ръчно обработена циментова мазилка подготвена за полагане на фаянс и теракота; ВиК инсталация на тапа; ЕЛ инсталация - контакти, ключ и фасонки; Положена ПВЦ дограма.
Разположен е в новострояща се сграда с Акт 14, безупречно качествено изпълнение на водеща строителна фирма. Апартаментът е покрит, НЕпреходен, без скосове, с правилни форми на стаите, статут 'Апартамент'.
Сградата: Луксозно завършени общи части с естествен камък - гранит, алуминиеви парапети, хидравличен асансьор гарантиращ безшумната работа. Домофонна система за контролиран достъп в сградата.
Забележка: Приложените снимки, схеми и визуализации са с цел добиване на максимална представа за завършения вид на имота.
* Апартамент за продажба в Слатина
Референтен код 81519 в www.novdom1.bg!
Консултант недвижими имоти: Калоян Николов, Тел.: 0890 555 960
Нов Дом 1 - винаги най-доброто на пазара!



